Chat with us, powered by LiveChat Van Maerlantlaan 13, 2531 EM DEN HAAG - Ruseler & Van Herk Makelaars

Den Haag

Van Maerlantlaan  13

€ 495.000,- k.k.

Omschrijving

Van Maerlantlaan 13 te 's-Gravenhage Ruimte, licht en eindeloze mogelijkheden. Deze royale jaren ’30 gezinswoning van maar liefst 161 m² heeft alles wat je zoekt: maar liefst 161 m² woonoppervlakte, voor- en achtertuin, twee balkons, vrij uitzicht op groen én een speeltuin recht voor de deur. En het mooiste? Deze woning is eenvoudig aan te passen naar maar liefst VIER…

Van Maerlantlaan 13 te 's-Gravenhage

Ruimte, licht en eindeloze mogelijkheden. Deze royale jaren ’30 gezinswoning van maar liefst 161 m² heeft alles wat je zoekt: maar liefst 161 m² woonoppervlakte, voor- en achtertuin, twee balkons, vrij uitzicht op groen én een speeltuin recht voor de deur. En het mooiste? Deze woning is eenvoudig aan te passen naar maar liefst VIER SLAAPKAMERS.

GROTE RUIMTES EN VOLLE POTENTIE OM JOUW DROOMHUIS TE MAKEN
Dit is zo’n woning waar je binnenkomt en direct voelt hoeveel ruimte hier is. De maatvoering is royaal, de indeling praktisch en de mogelijkheden eindeloos. Met een paar aanpassingen maak je hier eenvoudig een moderne, luxe gezinswoning met zelfs vier slaapkamers.

LIGGING:
De woning ligt aan een rustige weg met een groot grasveld direct voor de deur en een speeltuin aan de overkant. Een perfecte plek voor gezinnen. In de directe omgeving vind je scholen, winkels, openbaar vervoer en uitvalswegen. Een fijne woonomgeving waar rust, ruimte en voorzieningen samenkomen.

INDELING:
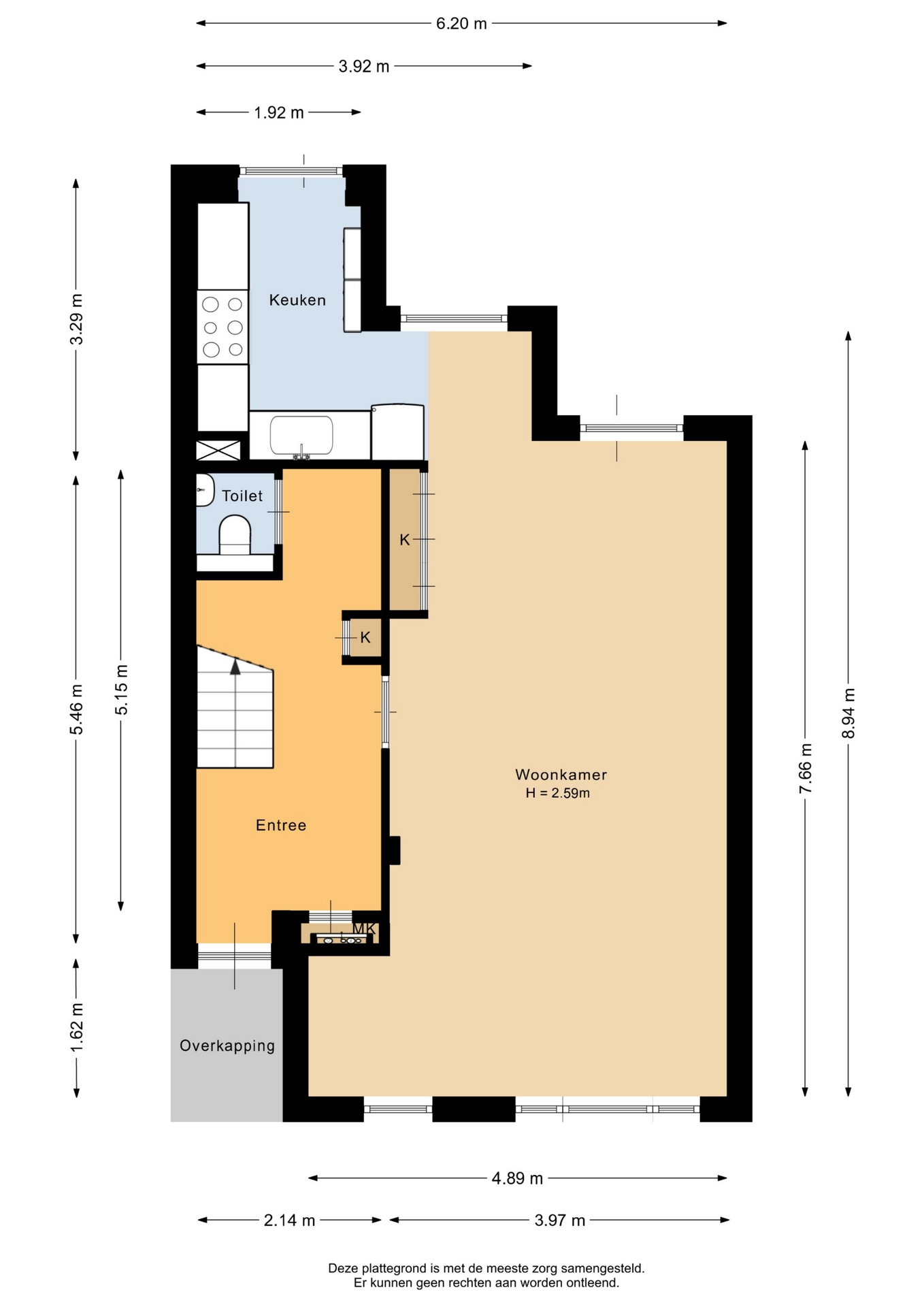
Je betreedt de woning via de voortuin. De entree geeft toegang tot de hal, het toilet en de woonkamer. De woonkamer is ruim opgezet en staat in verbinding met de achtertuin. Ook de keuken bevindt zich aan de achterzijde en geeft toegang tot de tuin.

Op de eerste verdieping bevinden zich twee slaapkamers en de badkamer. De badkamer is compleet uitgevoerd met een inloopdouche, ligbad en toilet. Eén van de slaapkamers geeft toegang tot het balkon en wordt momenteel gebruikt als inloopkast.

De tweede verdieping is verrassend groot. Hier vind je één zeer royale slaapkamer met balkon en een aparte, ruime wasruimte. Deze verdieping biedt de perfecte mogelijkheid om een extra slaapkamers te realiseren.

VOOR- EN ACHTERTUIN MET ACHTEROM EN BERGING
De achtertuin beschikt over een achterom en een houten berging. Ideaal voor fietsen en opslag. De voortuin zorgt voor extra privacy en een prettige afstand tot de straat.

KENMERKEN:
- Bouwjaar 1935, vernieuwbouwd in 2005/2006
- Woonoppervlakte ca. 161 m²
- 4 kamers (3 slaapkamers, mogelijkheid tot 4 slaapkamers)
- Tuin, en balkon op eerste en tweede verdieping
- Ruime wasruimte op de tweede verdieping
- CV-ketel is eigendom
- Energielabel C
- Vrij uitzicht op groen en speeltuin voor de deur
- Erfpacht eeuwigdurend afgekocht
- Projectnotaris van toepassing: van Hengstum en Stolp
- Ouderdoms- en niet-zelfbewoningsclausule van toepassing
- Oplevering

Bent u benieuwd naar welke renovatie mogelijkheden door verkoper bij deze woning worden aangeboden? Neem dan contact met ons op.

INTERESSE? MAAK DAN SNEL EEN AFSPRAAK!
Ons advies is om bij het kopen van uw nieuwe woning uw eigen NVM makelaar mee te nemen.

TOELICHTINGSCLAUSULE NEN2580
De Meetinstructie is gebaseerd op de NEN2580. De Meetinstructie is bedoeld om een meer eenduidige manier van meten toe te passen voor het geven van een indicatie van de gebruiksoppervlakte. De Meetinstructie sluit verschillen in meetuitkomsten niet volledig uit, door bijvoorbeeld interpretatieverschillen, afrondingen of beperkingen bij het uitvoeren van de meting.

KOOPOVEREENKOMST PAS RECHTSGELDIG NA ONDERTEKENING
Een mondelinge overeenstemming tussen de particuliere verkoper en de particuliere koper is niet rechtsgeldig. Met andere woorden: er is geen koop. Er is pas sprake van een rechtsgeldige koop als de particuliere verkoper en de particuliere koper de koopovereenkomst hebben ondertekend. Dit vloeit voort uit artikel 7:2 Burgerlijk Wetboek. Een bevestiging van de mondelinge overeenstemming per e-mail of een toegestuurd concept van de koopovereenkomst wordt overigens niet gezien als een 'ondertekende koopovereenkomst'

“Deze informatie is door ons met de nodige zorgvuldigheid samengesteld. Onzerzijds wordt echter geen enkele aansprakelijkheid aanvaard voor enige onvolledigheid, onjuistheid of anderszins, dan wel de gevolgen daarvan. Alle opgegeven maten en oppervlakten zijn indicatief.”

Kenmerken

Basiskenmerken

  • Status Onder bod
  • Koopsom € 495.000 k.k.
  • Woonoppervlakte ca. 161 m2
  • Aantal slaapkamers 3
  • Bouwjaar 1935

Overdracht

  • Aanvaarding In overleg

Bouwvorm & onderhoud

  • Soort object Tussenwoning
  • Soort woning Herenhuis
  • Bouwjaar 1935
  • Soort bouw woonhuis
  • Ligging Aan park, in woonwijk, vrij uitzicht, open ligging

Oppervlakte & inhoud

  • Gebruiksoppervlakte 161m2
  • Perceeloppervlakte 146m2
  • Inhoud 558m3
  • Aantal kamers 4
  • Aantal slaapkamers 3
  • Aantal woonlagen 3 woonlagen
  • Overige inpandige ruimte 2m2

Energie & installatie

  • Energielabel C
  • Isolatie Dubbel glas
  • Verwarming Cv ketel
  • Warm water Cv ketel, centrale voorziening, gasboiler eigendom
  • C.v.-ketel type GAS
  • Energie einddatum 16-01-2036

Bergruimte

  • Schuur / berging Vrijstaand hout

Parkeergelegenheid

  • Parkeerfaciliteiten Openbaar parkeren, betaald parkeren, parkeervergunningen
  • Garage Geen garage

Dak

  • Soort dak Dwarskap

Overig

  • Onderhoud binnen Redelijk tot goed
  • Onderhoud buiten Redelijk tot goed
  • Bijzonderheden Monumentaal pand, monument, gedeeltelijk gestoffeerd
  • Permanente bewoning Ja
  • Huidig gebruik Woonruimte
  • Huidige bestemming Woonruimte

Voorzieningen

  • Voorzieningen Mechanische ventilatie, tv kabel, natuurlijke ventilatie

Buitenruimte

  • Hoofdtuin ACHTERTUIN
  • Oppervlakte hoofdtuin 66m2
  • Kwaliteit tuin Normaal

Kadastrale gegevens

  • Perceelnummer 3576
  • Perceeloppervlakte 146 m2
Meer kenmerken
Ontdek online wat jouw huis waard is

Met de online waardecheck ontdek je in een paar minuten de geschatte waarde van jouw huis

Online waardecheck

In de buurt

Geïnteresseerd?

Bel met Ruseler & Van Herk Makelaars

shape

Stuur een bericht

* Maximaal 255 tekens
privacyverklaring