Chat with us, powered by LiveChat Jan Campertlaan 39, 3201 AX SPIJKENISSE - Ruseler & Van Herk Makelaars

Spijkenisse

Jan Campertlaan  39

€ 550.000,- k.k.

Omschrijving

Jan Campertlaan 39 in Spijkenisse RIANT GEZINSHUIS MET SERRE, GARAGE EN TUIN OP HET ZUIDEN IN CENTRUM SPIJKENISSE Op zoek naar ruimte, comfort en modern woonplezier? Deze instapklare eengezinswoning in het centrum van Spijkenisse heeft het allemaal. Met een woonoppervlakte van maar liefst 165 m², verdeeld over vier verdiepingen, vijf slaapkamers, een inpandige garage,…

Jan Campertlaan 39 in Spijkenisse

RIANT GEZINSHUIS MET SERRE, GARAGE EN TUIN OP HET ZUIDEN IN CENTRUM SPIJKENISSE
Op zoek naar ruimte, comfort en modern woonplezier? Deze instapklare eengezinswoning in het centrum van Spijkenisse heeft het allemaal. Met een woonoppervlakte van maar liefst 165 m², verdeeld over vier verdiepingen, vijf slaapkamers, een inpandige garage, serre en zonnige tuin is dit een ideaal familiehuis voor jonge doorstromers die niets willen inleveren op luxe en locatie.

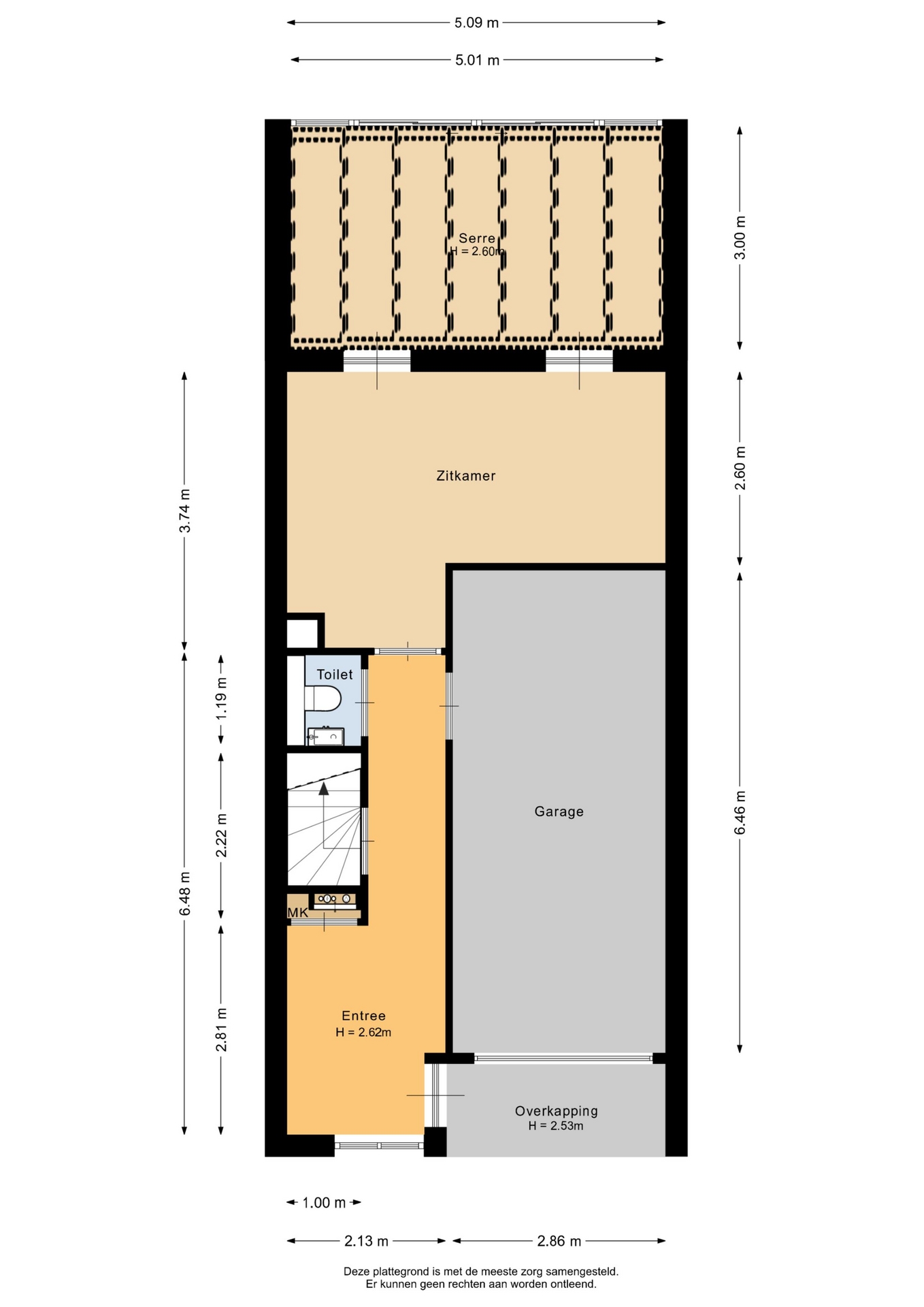
PRAKTISCHE BEGANE GROND MET GARAGE
Op de begane grond vind je de entree met hal, luxe toilet en trapopgang. Aan de achterzijde bevindt zich een ruime zit-/tuinkamer met toegang tot de sfeervolle serre. De inpandige garage aan de voorzijde is voorzien van een elektrische garagedeur en elektra, volledig geïsoleerd en daarmee ook inzetbaar als opslag, werkruimte of sporthoek.

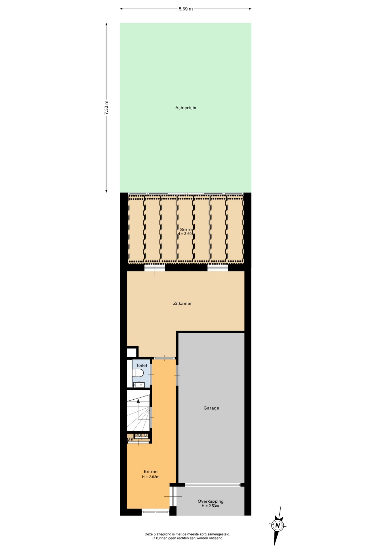
AANGEBOUWDE SERRE EN ZONNIGE ACHTERTUIN
Aan de achterzijde is in 2021 een ruime serre gerealiseerd, voorzien van glazen schuifpanelen. Deze plek verlengt het woongedeelte op natuurlijke wijze en maakt het mogelijk om bijna het hele jaar buiten te zitten. Een fijne extra zitruimte voor een borrel, kinderspeelhoek of thuiskantoor.

Vanuit de serre stap je zo de zonnige, onderhoudsvriendelijke achtertuin in. De tuin is fraai aangelegd, gelegen op het zuiden, en biedt alle privacy. Door de ligging profiteer je hier van veel zon in de ochtend en middag – ideaal voor tuinliefhebbers of ouders met jonge kinderen.

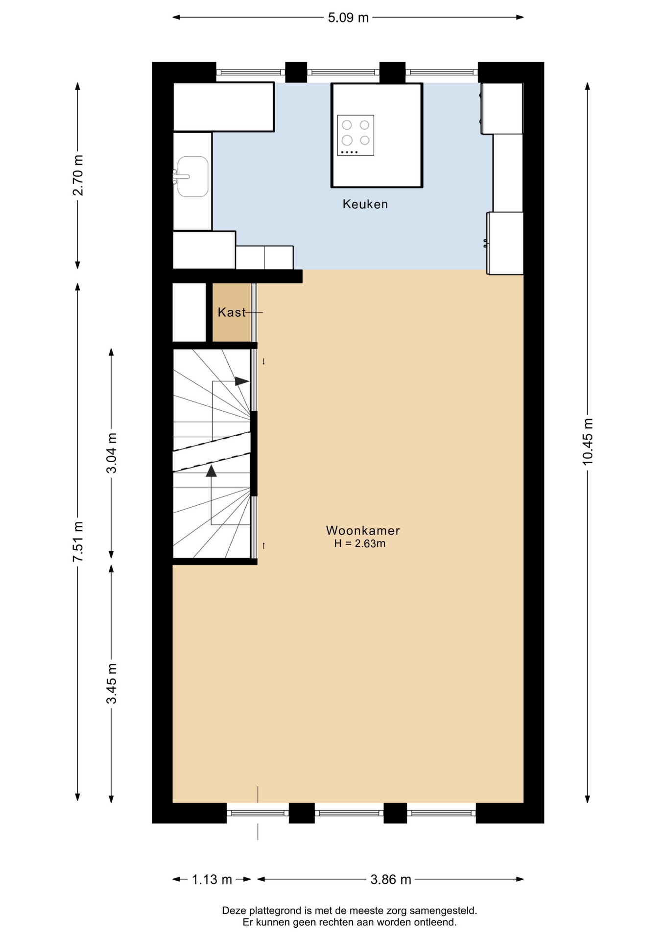
MODERNE WOONVERDIEPING MET LICHT EN STIJL
De eerste verdieping vormt het hart van het huis: een royale en lichte woonkamer van met een moderne pvc-vloer in visgraatmotief en vloerverwarming. Dankzij grote raampartijen aan voor- en achterzijde is dit een heerlijk lichte ruimte. De afwerking is strak en smaakvol, met warme tinten en stalen deuren die zorgen voor een eigentijdse sfeer.

De keuken (2023) is een plaatje en een paradijs voor kookliefhebbers. Voorzien van een kookeiland met inductiekookplaat, luxe inbouwapparatuur, een royale koelkast en veel bergruimte is deze keuken perfect voor dagelijks gemak én gezellige diners. Het geheel sluit naadloos aan op de eethoek en biedt zicht op de serre en tuin.

VIJF SLAAPKAMERS EN EEN LUXE BADKAMER
Op de tweede verdieping vind je drie ruime slaapkamers. De hoofdslaapkamer aan de achterzijde springt eruit met zijn warme accentmuur en grote kast. De overige twee kamers zijn perfect als kinderkamer, logeerkamer of werkkamer. De badkamer is ruim en modern, met dubbele wastafel, inloopdouche met regendouche, ligbad en toilet.

De derde verdieping telt nog eens een royale slaapkamer met dakramen en een aparte wasruimte met opstelling voor wasmachine en droger onder het dakraam. Dankzij de slimme indeling en nette afwerking is ook deze verdieping volledig functioneel als woonverdieping.

ENERGIEZUINIG EN INSTAPKLAAR
Het huis is gebouwd in 2006 en voldoet aan de moderne eisen van isolatie en duurzaamheid. Met energielabel A, dak-, vloer- én muurisolatie, HR++ glas én 10 zonnepanelen uit 2016 ben je hier klaar voor de toekomst. De Intergas HR-combiketel is goed onderhouden en eigendom.

FIJNE LIGGING IN HET CENTRUM VAN SPIJKENISSE
Jan Campertlaan 39 ligt in de geliefde wijk Staalmeesters: rustig, kindvriendelijk én centraal. Alle voorzieningen zoals supermarkten, winkels, scholen, speeltuinen, horeca en openbaar vervoer bevinden zich op loopafstand. De ligging nabij uitvalswegen en metrostation maakt dit bovendien een ideale thuisbasis voor wie in Rotterdam werkt of regelmatig de stad in wil.

BELANGRIJKSTE KENMERKEN
- Woonoppervlakte: 165 m²
- Perceeloppervlakte: 110m²
- Bouwjaar: 2006
- 5 slaapkamers
- Aangebouwde serre (2021)
- Tuin op het Zuiden
- Ideale ligging in Centrum Spijkenisse
- Ruime inpandige garage van 19m2
- Moderne keuken 2023
- Complete badkamer
- Energielabel: A (geldig tot 2036)
- Aanvaarding: In overleg.

Toelichtingsclausule NEN2580:
De Meetinstructie is gebaseerd op de NEN2580. De Meetinstructie is bedoeld om een meer eenduidige manier van meten toe te passen voor het geven van een indicatie van de gebruiksoppervlakte. De Meetinstructie sluit verschillen in meetuitkomsten niet volledig uit, door bijvoorbeeld interpretatieverschillen, afrondingen of beperkingen bij het uitvoeren van de meting.

“Deze informatie is door ons met de nodige zorgvuldigheid samengesteld. Onzerzijds wordt echter geen enkele aansprakelijkheid aanvaard voor enige onvolledigheid, onjuistheid of anderszins, dan wel de gevolgen daarvan. Alle opgegeven maten en oppervlakten zijn indicatief.”

Koopovereenkomst pas rechtsgeldig na ondertekening:
Een mondelinge overeenstemming tussen de particuliere verkoper en de particuliere koper is niet rechtsgeldig. Met andere woorden: er is geen koop. Er is pas sprake van een rechtsgeldige koop als de particuliere verkoper en de particuliere koper de koopovereenkomst hebben ondertekend. Dit vloeit voort uit artikel 7:2 Burgerlijk Wetboek. Een bevestiging van de mondelinge overeenstemming per e-mail of een toegestuurd concept van de koopovereenkomst wordt overigens niet gezien als een 'ondertekende koopovereenkomst'.

Kenmerken

Basiskenmerken

  • Status Onder bod
  • Koopsom € 550.000 k.k.
  • Woonoppervlakte ca. 165 m2
  • Aantal slaapkamers 5
  • Bouwjaar 2006

Overdracht

  • Aanvaarding In overleg

Bouwvorm & onderhoud

  • Soort object Tussenwoning
  • Soort woning Eengezinswoning
  • Bouwjaar 2006
  • Soort bouw woonhuis
  • Ligging Aan rustige weg, in centrum, in woonwijk

Oppervlakte & inhoud

  • Gebruiksoppervlakte 165m2
  • Perceeloppervlakte 110m2
  • Inhoud 694m3
  • Aantal kamers 6
  • Aantal slaapkamers 5
  • Aantal woonlagen 4 woonlagen
  • Overige inpandige ruimte 19m2

Energie & installatie

  • Energielabel A
  • Isolatie Dakisolatie, muurisolatie, vloerisolatie, dubbel glas, volledig geisoleerd
  • Verwarming Cv ketel
  • Warm water Cv ketel
  • C.v.-ketel bouwjaar 2006
  • Energie einddatum 14-01-2036

Parkeergelegenheid

  • Parkeerfaciliteiten Openbaar parkeren, parkeervergunningen
  • Garage Inpandig

Dak

  • Soort dak Zadeldak

Overig

  • Onderhoud binnen Goed tot uitstekend
  • Onderhoud buiten Goed tot uitstekend
  • Bijzonderheden Gedeeltelijk gestoffeerd
  • Permanente bewoning Ja
  • Huidig gebruik Woonruimte
  • Huidige bestemming Woonruimte

Voorzieningen

  • Voorzieningen Mechanische ventilatie, rolluiken, tv kabel, frans balkon, dakraam, glasvezel kabel, zonnepanelen, natuurlijke ventilatie

Buitenruimte

  • Hoofdtuin ACHTERTUIN
  • Oppervlakte hoofdtuin 43m2
  • Ligging hoofdtuin ZUIDOOST
  • Kwaliteit tuin Verzorgd

Kadastrale gegevens

  • Perceelnummer 6395
  • Perceeloppervlakte 110 m2
Meer kenmerken
Ontdek online wat jouw huis waard is

Met de online waardecheck ontdek je in een paar minuten de geschatte waarde van jouw huis

Online waardecheck

In de buurt

Geïnteresseerd?

Bel met Ruseler & Van Herk Makelaars

shape

Stuur een bericht

* Maximaal 255 tekens
privacyverklaring