Chat with us, powered by LiveChat Graaf Balderikstraat 40, 3032 HC ROTTERDAM - Ruseler & Van Herk Makelaars

Rotterdam

Graaf Balderikstraat  40

€ 300.000,- k.k.

Omschrijving

Wij bieden aan: een sfeervol 2-kamerappartement op een absolute toplocatie, perfect voor starters! Dit leuke appartement is gelegen op de 1e verdieping van het geliefde Heliport-complex en bevindt zich op loopafstand van het bruisende centrum van Rotterdam. De woning beschikt over een ruim balkon op het zuiden, waar u heerlijk van de zon kunt genieten. Met een…

Wij bieden aan: een sfeervol 2-kamerappartement op een absolute toplocatie, perfect voor starters!

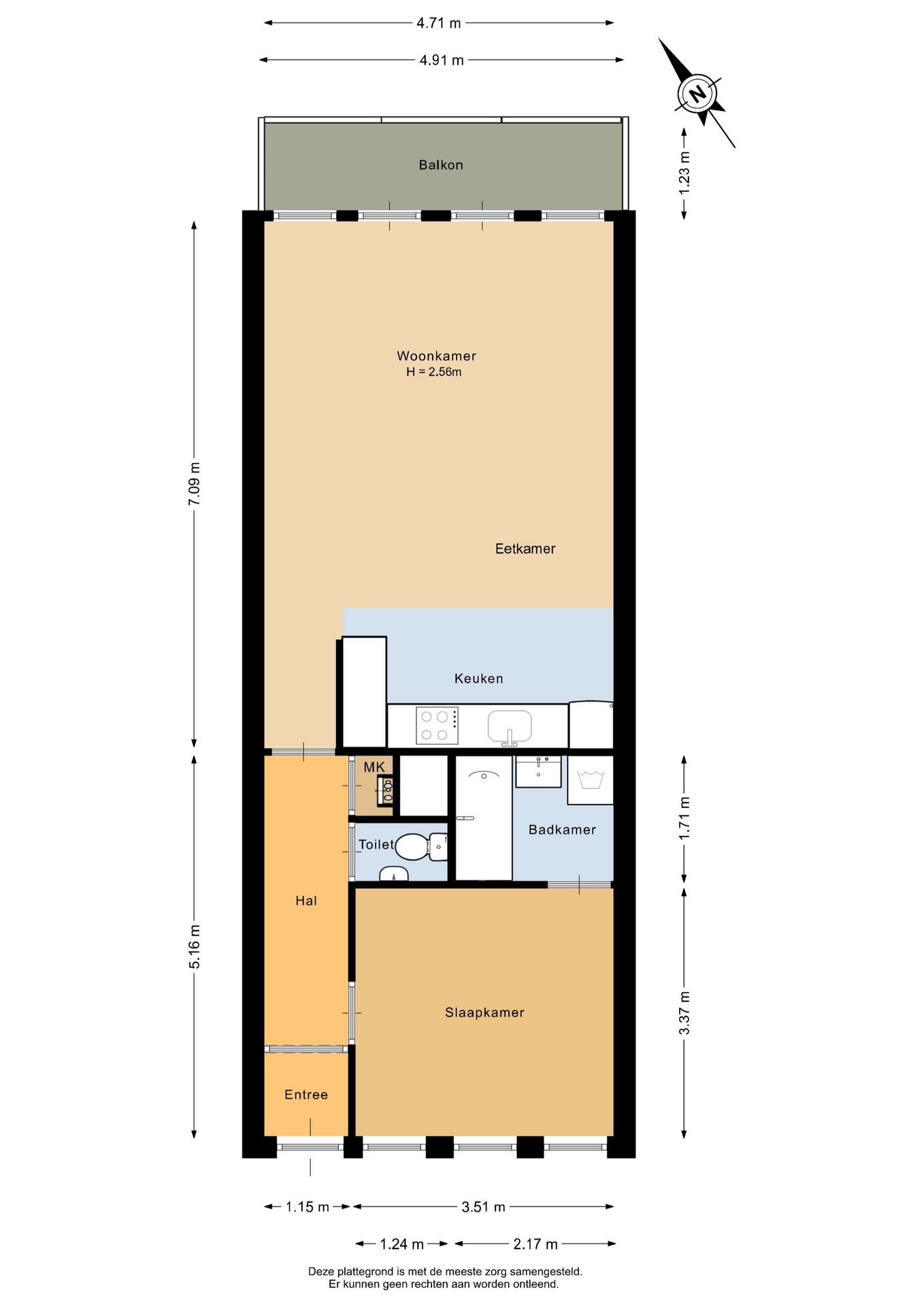
Dit leuke appartement is gelegen op de 1e verdieping van het geliefde Heliport-complex en bevindt zich op loopafstand van het bruisende centrum van Rotterdam. De woning beschikt over een ruim balkon op het zuiden, waar u heerlijk van de zon kunt genieten. Met een woonoppervlakte van ca. 58 m² voelt het appartement comfortabel en prettig ingedeeld aan.

GOED INGEDEELD MET ZONNIG BALKON
Via de ruime hal bereik je alle vertrekken. De woonkamer is royaal en profiteert van grote ramen aan de voorzijde. Openslaande deuren geven toegang tot het brede balkon op het zuiden: perfect voor een ochtendkoffie of een borrel na het werk.

De open keuken is praktisch uitgevoerd in een L-opstelling en voorzien van een elektrische kookplaat, oven, RVS afzuigkap, 1,5 spoelbak en ruimte voor een losse koelkast en vaatwasser.
De slaapkamer ligt rustig aan de achterzijde en biedt toegang tot de volledig betegelde badkamer met ligbad/douche, wastafelmeubel, designradiator en wasmachineaansluiting. In de hal bevindt zich een separaat toilet met fonteintje.

DE BUURT: CENTRAAL, RUSTIG EN LEVENDIG
Het Heliport-complex ligt op een unieke plek midden in Rotterdam, waar rust en dynamiek perfect samenkomen. Dankzij het autovrije karakter, de groene binnenpleinen en waterpartijen woon je hier verrassend rustig, terwijl het bruisende stadscentrum letterlijk om de hoek ligt. Rotterdam Centraal, de Meent, de Markthal en diverse horeca en winkels zijn eenvoudig lopend of per fiets bereikbaar. Ook het openbaar vervoer is uitstekend geregeld met trein-, metro- en tramverbindingen op korte afstand. En wie de drukte even wil ontvluchten, staat binnen 15 minuten fietsen in het Kralingse Bos of langs de Maas

COMFORTABEL EN COMPLEET
Het appartement is voorzien van stadsverwarming, volledig dubbel glas en een eigen berging op dezelfde verdieping.
De VvE is actief en gezond, met een maandelijkse bijdrage van ca. € 148,-. De woning staat op erfpacht; de canon loopt tot 31 maart 2054 (circa € 103,- per maand, fiscaal aftrekbaar, indien eigen woning box 1).

KENMERKEN:
-Bouwjaar 1981
-Woonoppervlakte ca. 58 m²
-Energielabel B
-2 kamers
-Op loopafstand van het Hofplein, in het Heliport-complex
-Diverse voorzieningen op loopafstand
-Balkon op het zuiden
-Verwarming warm water middels stadsverwarming
-Actieve VvE met een bijdrage van ca. € 148,- per maand
-Ouderdomsclausule van toepassing
-Oplevering in overleg

INTERESSE? MAAK DAN SNEL EEN AFSPRAAK!
Ons advies is om bij het kopen van jouw nieuwe woning jouw eigen NVM-makelaar mee te nemen.

TOELICHTINGSCLAUSULE NEN2580
De Meetinstructie is gebaseerd op de NEN2580. De Meetinstructie is bedoeld om een meer eenduidige manier van meten toe te passen voor het geven van een indicatie van de gebruiksoppervlakte. De Meetinstructie sluit verschillen in meetuitkomsten niet volledig uit, door bijvoorbeeld interpretatieverschillen, afrondingen of beperkingen bij het uitvoeren van de meting.

KOOPOVEREENKOMST PAS RECHTSGELDIG NA ONDERTEKENING
Een mondelinge overeenstemming tussen de particuliere verkoper en de particuliere koper is niet rechtsgeldig. Met andere woorden: er is geen koop. Er is pas sprake van een rechtsgeldige koop als de particuliere verkoper en de particuliere koper de koopovereenkomst hebben ondertekend. Dit vloeit voort uit artikel 7:2 Burgerlijk Wetboek. Een bevestiging van de mondelinge overeenstemming per e-mail of een toegestuurd concept van de koopovereenkomst wordt overigens niet gezien als een 'ondertekende koopovereenkomst'

“Deze informatie is door ons met de nodige zorgvuldigheid samengesteld. Onzerzijds wordt echter geen enkele aansprakelijkheid aanvaard voor enige onvolledigheid, onjuistheid of anderszins, dan wel de gevolgen daarvan. Alle opgegeven maten en oppervlakten zijn indicatief.”

Kenmerken

Basiskenmerken

  • Status Onder bod
  • Koopsom € 300.000 k.k.
  • Woonoppervlakte ca. 58 m2
  • Aantal slaapkamers 1
  • Bouwjaar 1981

Overdracht

  • Aanvaarding In overleg

Bouwvorm & onderhoud

  • Bouwjaar 1981
  • Soort bouw woonhuis
  • Ligging Aan water, vrij uitzicht, open ligging

Oppervlakte & inhoud

  • Gebruiksoppervlakte 58m2
  • Inhoud 183m3
  • Aantal kamers 2
  • Aantal slaapkamers 1
  • Aantal woonlagen 1 woonlagen

Energie & installatie

  • Energielabel B
  • Isolatie Dubbel glas
  • Verwarming Stadsverwarming
  • Warm water Centrale voorziening
  • Energie einddatum 14-06-2028

Bergruimte

  • Schuur / berging Box

Parkeergelegenheid

  • Parkeerfaciliteiten Openbaar parkeren, betaald parkeren, parkeervergunningen
  • Garage Geen garage

Dak

  • Soort dak Zadeldak

Overig

  • Onderhoud binnen Goed
  • Onderhoud buiten Goed
  • Bijzonderheden Gedeeltelijk gestoffeerd
  • Permanente bewoning Ja
  • Huidig gebruik Woonruimte
  • Huidige bestemming Woonruimte

Voorzieningen

  • Voorzieningen Tv kabel, lift, natuurlijke ventilatie

Kadastrale gegevens

  • Perceelnummer 638
Meer kenmerken
Ontdek online wat jouw huis waard is

Met de online waardecheck ontdek je in een paar minuten de geschatte waarde van jouw huis

Online waardecheck

In de buurt

Geïnteresseerd?

Bel met Ruseler & Van Herk Makelaars

shape

Stuur een bericht

* Maximaal 255 tekens
privacyverklaring