Chat with us, powered by LiveChat Bizetstraat 16, 3208 CB SPIJKENISSE - Ruseler & Van Herk Makelaars

Spijkenisse

Bizetstraat  16

€ 425.000,- k.k.

Omschrijving

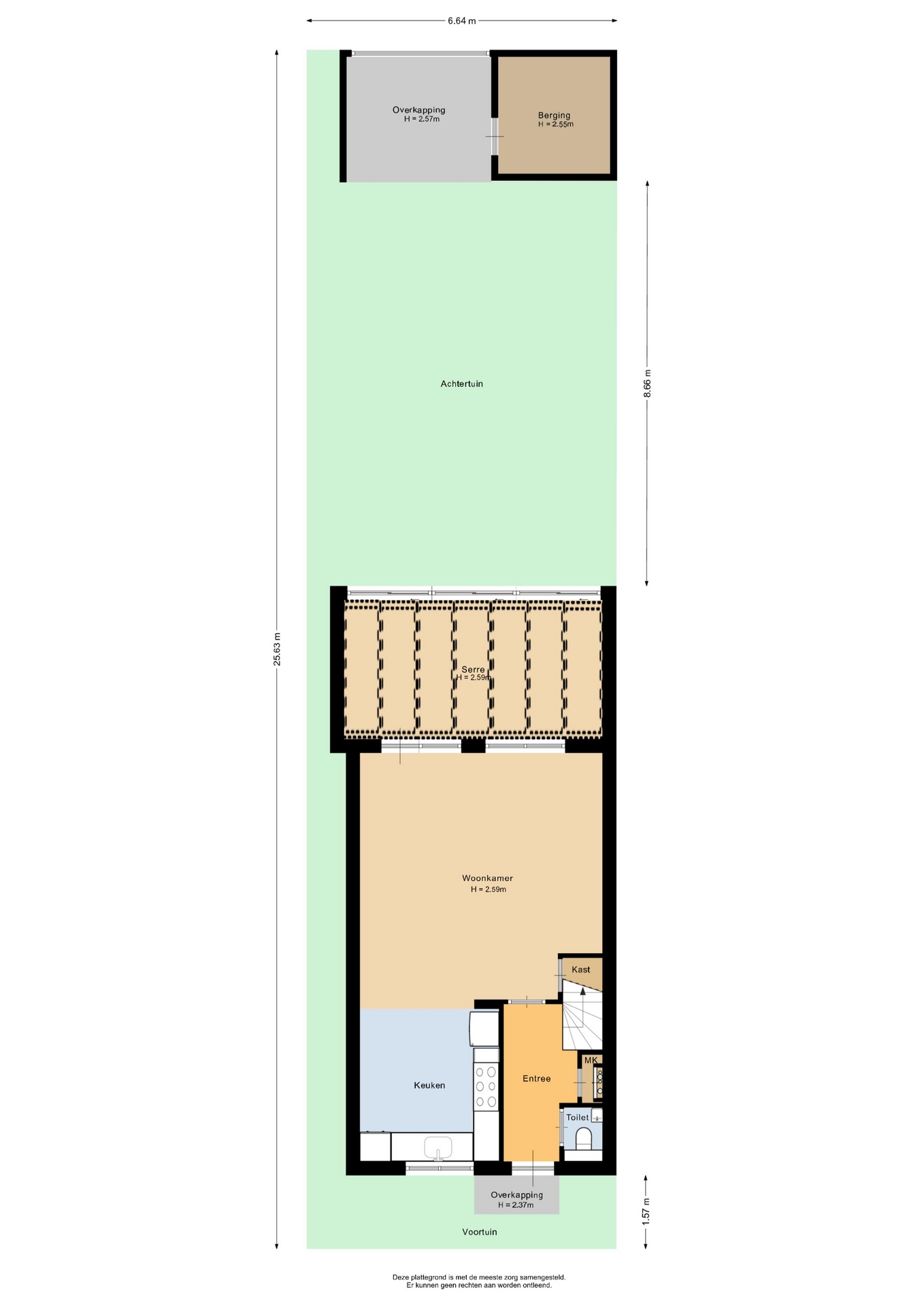
MODERNE GEZINSWONING MET SERRE EN ZONNEPANELEN Ben jij op zoek naar ruimte, comfort én duurzaamheid? Dan is deze keurig afgewerkte hoekwoning met vijf slaapkamers, moderne badkamer en serre van 16 m² absoluut een bezoek waard. Gelegen in een rustige woonwijk in Spijkenisse, biedt dit huis alle ruimte voor een groeiend gezin dat klaar is voor de volgende stap. LICHTE…

MODERNE GEZINSWONING MET SERRE EN ZONNEPANELEN
Ben jij op zoek naar ruimte, comfort én duurzaamheid? Dan is deze keurig afgewerkte hoekwoning met vijf slaapkamers, moderne badkamer en serre van 16 m² absoluut een bezoek waard. Gelegen in een rustige woonwijk in Spijkenisse, biedt dit huis alle ruimte voor een groeiend gezin dat klaar is voor de volgende stap.

LICHTE WOONKAMER MET AANGEBOUWDE SERRE
De begane grond is slim ingedeeld en voelt dankzij de grote ramen en serre heerlijk ruim en licht aan. De woonkamer van ca. 27 m² is een fijne plek om te ontspannen, met een natuurlijke doorloop naar de serre die perfect dienstdoet als tweede zithoek en/of speelruimte. Hier kijk je uit op de zonnige en verzorgde achtertuin, gelegen op het oosten – ideaal voor een ontbijtje in de ochtendzon of een ontspannen borrel aan het eind van de dag.

De keuken is netjes en voorzien van alle gebruikelijke inbouwapparatuur. Of je nu snel een maaltijd wilt bereiden of uitgebreid wilt koken: de ruimte en praktische indeling maken het allemaal mogelijk.

VIJF SLAAPKAMERS EN MODERNE BADKAMER
Op de eerste verdieping vind je drie slaapkamers van verschillende formaten, ideaal voor ouders en kinderen. De badkamer is in 2020 vernieuwd en straalt modern comfort uit met een ruime inloopdouche, 2de toilet, designradiator en badkamermeubel met wastafel.

Op de tweede verdieping zijn nog twee kamers gecreëerd, mede dankzij de dakkapel aan de achterzijde. Deze kamers zijn perfect als slaapkamer, logeerkamer of werkkamer. De overloop beschikt over aansluitingen voor de wasmachine en droger én er is veel bergruimte beschikbaar, inclusief toegang tot een vliering.

DUURZAAM WONEN IN EEN FIJNE OMGEVING
Wat dit huis extra aantrekkelijk maakt, is de set van 10 zonnepanelen op het dak. Dit draagt bij aan lagere energiekosten én een duurzamere manier van wonen. De woning is goed geïsoleerd met dak-, muur- en vloerisolatie, en voorzien van dubbel glas.

Buiten vind je een verzorgde achtertuin met achterom, een vrijstaande stenen berging met elektra en volop ruimte om te genieten van het buitenleven. Aan de voorzijde is voldoende parkeergelegenheid aanwezig.

FIJNE LOCATIE IN DE GELIEFDE WOONWIJK VOGELENZANG
Bizetstraat 16 ligt in een rustige, kindvriendelijke straat in Spijkenisse. In de directe omgeving vind je diverse speelplekken, basisscholen en sportvoorzieningen. Ook winkels, supermarkten en openbaar vervoer zijn binnen handbereik. Met de auto ben je bovendien zo op de uitvalswegen richting Rotterdam en omgeving. Kortom: een ideale combinatie van ruimte, rust en bereikbaarheid.

KENMERKEN OP EEN RIJ:
- Woonoppervlakte: ca. 123 m²
- Perceeloppervlakte: 156 m²
- Bouwjaar: 1984
- Aangebouwde serre (2020)
- Moderne badkamer (2020) en toilet
- Mooie eiken parketvloer begane grond
- 10 zonnepanelen
- Tuin op het Oosten
- 5 slaapkamers
- Dakkapel op tweede verdieping
- Energielabel: C (geldig tot 28-05-2030 voor plaatsen van zonnepanelen)

Toelichtingsclausule NEN2580:
De Meetinstructie is gebaseerd op de NEN2580. De Meetinstructie is bedoeld om een meer eenduidige manier van meten toe te passen voor het geven van een indicatie van de gebruiksoppervlakte. De Meetinstructie sluit verschillen in meetuitkomsten niet volledig uit, door bijvoorbeeld interpretatieverschillen, afrondingen of beperkingen bij het uitvoeren van de meting.

“Deze informatie is door ons met de nodige zorgvuldigheid samengesteld. Onzerzijds wordt echter geen enkele aansprakelijkheid aanvaard voor enige onvolledigheid, onjuistheid of anderszins, dan wel de gevolgen daarvan. Alle opgegeven maten en oppervlakten zijn indicatief.”

Koopovereenkomst pas rechtsgeldig na ondertekening:
Een mondelinge overeenstemming tussen de particuliere verkoper en de particuliere koper is niet rechtsgeldig. Met andere woorden: er is geen koop. Er is pas sprake van een rechtsgeldige koop als de particuliere verkoper en de particuliere koper de koopovereenkomst hebben ondertekend. Dit vloeit voort uit artikel 7:2 Burgerlijk Wetboek. Een bevestiging van de mondelinge overeenstemming per e-mail of een toegestuurd concept van de koopovereenkomst wordt overigens niet gezien als een 'ondertekende koopovereenkomst'.

Kenmerken

Basiskenmerken

  • Status Verkocht onder voorbehoud
  • Koopsom € 425.000 k.k.
  • Woonoppervlakte ca. 123 m2
  • Aantal slaapkamers 5
  • Bouwjaar 1984

Overdracht

  • Aanvaarding In overleg

Bouwvorm & onderhoud

  • Soort object Hoekwoning
  • Soort woning Eengezinswoning
  • Bouwjaar 1984
  • Soort bouw woonhuis
  • Ligging Aan rustige weg, in woonwijk, beschutte ligging

Oppervlakte & inhoud

  • Gebruiksoppervlakte 123m2
  • Perceeloppervlakte 156m2
  • Inhoud 448m3
  • Aantal kamers 6
  • Aantal slaapkamers 5
  • Aantal woonlagen 4 woonlagen
  • Overige inpandige ruimte 4m2

Energie & installatie

  • Energielabel C
  • Isolatie Dakisolatie, muurisolatie, vloerisolatie, dubbel glas, volledig geisoleerd
  • Verwarming Cv ketel
  • Warm water Cv ketel
  • C.v.-ketel type GAS
  • C.v.-ketel bouwjaar 2018
  • Energie einddatum 28-05-2030

Bergruimte

  • Schuur / berging Vrijstaand steen
  • Voorzieningen Voorzien van elektra

Parkeergelegenheid

  • Parkeerfaciliteiten Openbaar parkeren
  • Garage Geen garage

Dak

  • Soort dak Zadeldak

Overig

  • Onderhoud binnen Goed
  • Onderhoud buiten Goed
  • Bijzonderheden Gedeeltelijk gestoffeerd
  • Permanente bewoning Ja
  • Huidig gebruik Woonruimte
  • Huidige bestemming Woonruimte

Voorzieningen

  • Voorzieningen Mechanische ventilatie, tv kabel, dakraam, glasvezel kabel, zonnepanelen, natuurlijke ventilatie

Buitenruimte

  • Hoofdtuin ACHTERTUIN
  • Oppervlakte hoofdtuin 57m2
  • Ligging hoofdtuin OOST
  • Kwaliteit tuin Verzorgd

Kadastrale gegevens

  • Perceelnummer 803
  • Perceeloppervlakte 156 m2
Meer kenmerken
Ontdek online wat jouw huis waard is

Met de online waardecheck ontdek je in een paar minuten de geschatte waarde van jouw huis

Online waardecheck

In de buurt