Chat with us, powered by LiveChat Bellefleurhof 12, 2728 KH ZOETERMEER - Ruseler & Van Herk Makelaars

Zoetermeer

Bellefleurhof 12 

€ 1.345.000,- k.k.

Omschrijving

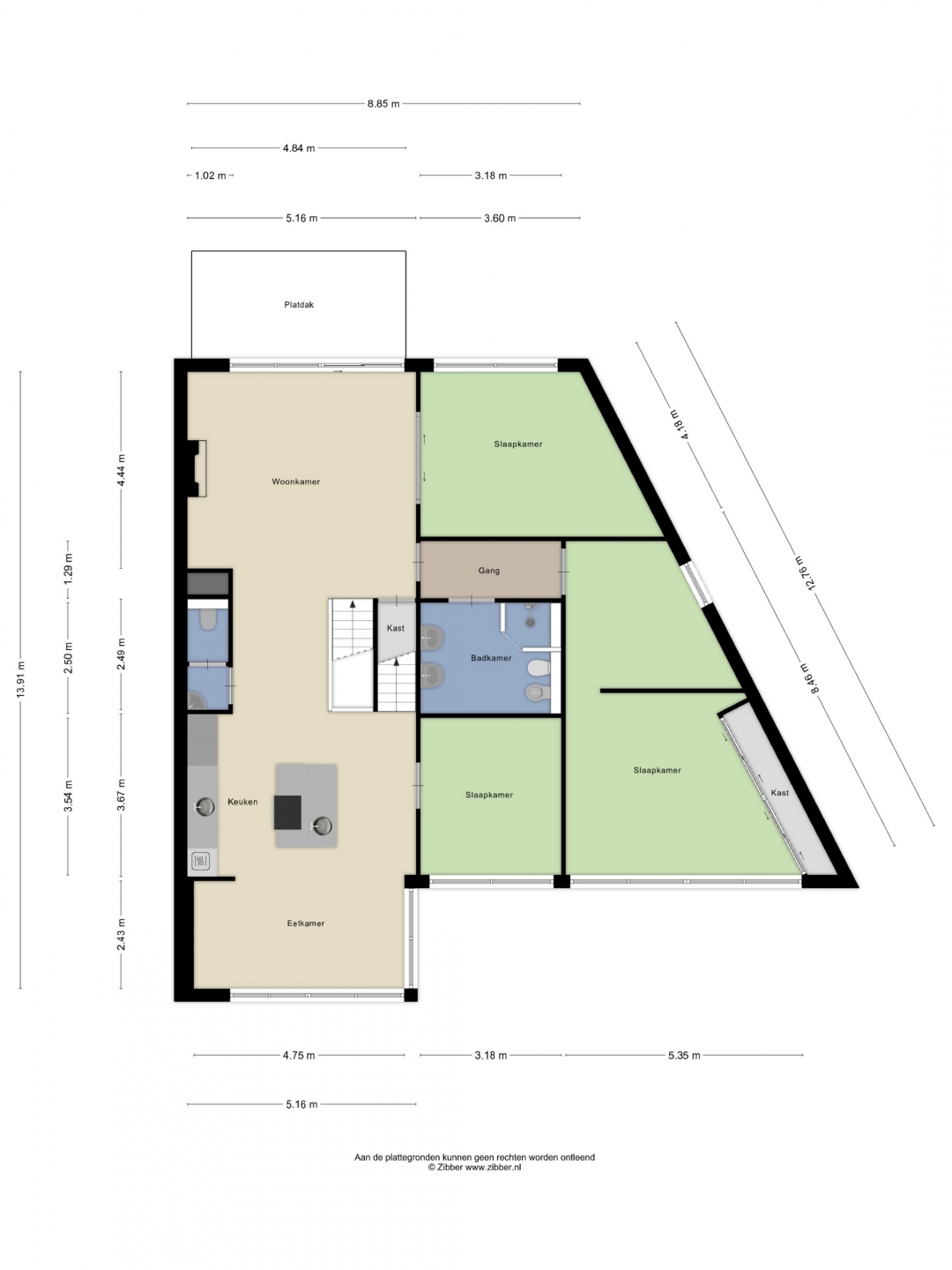
MEERDERE WONINGEN ONDER ÉÉN DAK. 2 WOONKAMERS, 2 KEUKENS, 9 SLAAPKAMERS, 3 BADKAMERS; Aan de Bellefleurhof 12 in Zoetermeer vind je een unieke wooncombinatie: twee volledige wooneenheden onder één dak, elk met een eigen huisnummer. Perfect voor dubbele bewoning, mantelzorg, kangoeroewonen of een combinatie van wonen en werken. Met maar liefst 382 m2 woonoppervlakte, 2…

MEERDERE WONINGEN ONDER ÉÉN DAK. 2 WOONKAMERS, 2 KEUKENS, 9 SLAAPKAMERS, 3 BADKAMERS;
Aan de Bellefleurhof 12 in Zoetermeer vind je een unieke wooncombinatie: twee volledige wooneenheden onder één dak, elk met een eigen huisnummer. Perfect voor dubbele bewoning, mantelzorg, kangoeroewonen of een combinatie van wonen en werken. Met maar liefst 382 m2 woonoppervlakte, 2 woonkamers, 2 keukens, 3 badkamers en 9 slaapkamers is dit geen standaard huis, maar een plek vol mogelijkheden. Denk aan een gezinsvervangend huis, co-housing of royaal wonen met ruimte voor gasten of een au-pair, maar een praktijk aan huis behoort ook tot de mogelijkheden. De huidige indeling maakt het eenvoudig om samen te wonen met behoud van privacy.

GROOT, LICHT EN LUXE AFGEWERKT
De woonruimtes zijn royaal opgezet en licht door de grote raampartijen. Elke woning heeft een eigen woonkamer met uitzicht op het groen rondom het huis. De keukens zijn praktisch ingericht en sluiten goed aan op de leefruimtes. In totaal zijn er drie moderne badkamers aanwezig, en door de verdeling over vier woonlagen is er altijd een rustige plek te vinden. De slaapkamers zijn verdeeld over alle verdiepingen, met ruimte voor grote bedden, bureaus en kasten. De huidige bewoners hebben de woning keurig onderhouden; de afwerking is strak en eigentijds. Dankzij HR++ beglazing, aluminium kozijnen, dak-, muur- en vloerisolatie, en 12 zonnepanelen is dit huis ook nog eens energiezuinig (energielabel A).

GENIETEN VAN BUITENRUIMTE OP IEDER NIVEAU
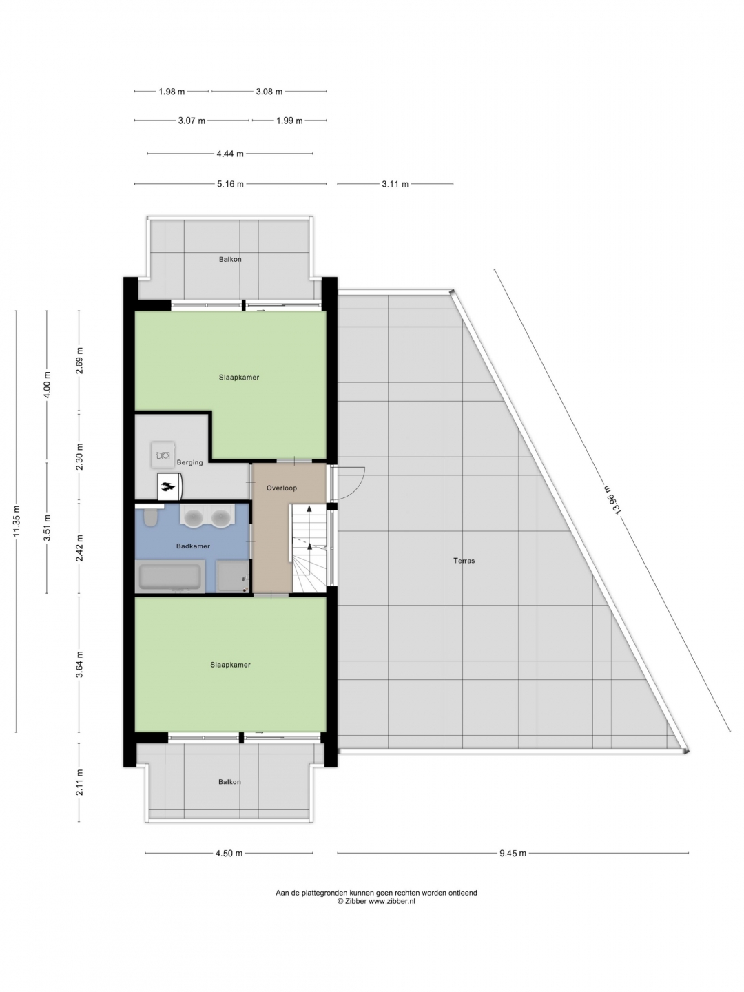
De buitenruimte is al net zo indrukwekkend: in totaal 168 m2 aan buitenruimte verdeeld over een ruime voortuin, achtertuin, 3 balkons en 3 dakterrassen. Hierdoor heb je altijd een plek in de zon én privacy. Op eigen terrein is ruimte om te parkeren onder de carport en er is zelfs een eigen laadpaal aanwezig. De ligging in een groene, rustige wijk van Zoetermeer maakt het woongenot compleet. Vanuit de woonkamer kijk je vrij uit over een groenstrook en volwassen bomen – een zeldzame combinatie van ruimte, privacy en natuur binnen handbereik.

IDEAAL VOOR SAMENWONEN OF ZELFSTANDIG GEBRUIK
Dit zeer riante halfvrijstaande herenhuis biedt uitzonderlijk veel ruimte en flexibiliteit. Met een woonoppervlakte van maar liefst 382 m2, een inhoud van 1.262 m3 en een totale buitenruimte van 168 m2 behoort deze woning tot de ruimste in Zoetermeer. Het huis bestaat uit 4 volwaardige verdiepingen en beschikt over 2 woonkamers, 2 keukens, 3 badkamers en maar liefst 9 slaapkamers. Daarnaast geniet je hier van volop buitenruimte dankzij de voor- en achtertuin, 3 balkons en 3 dakterrassen. Of je nu kiest voor dubbele bewoning, mantelzorg, wonen met een groot gezin of een combinatie van wonen en werken – deze woning biedt alle ruimte en indelingsmogelijkheden die je nodig hebt. Er zijn 2 huisnummers (12A en 12B) met een formele splitsing maar uiteraard is volledig zelfstandig gebruik ook mogelijk.

OVER DE WIJK NOORDHOVE DEEL II IN ZOETERMEER
Noordhove deel II is een rustige, groene en geliefde woonwijk in Zoetermeer. De wijk kenmerkt zich door moderne bouw, brede straten, veel openbaar groen en een kindvriendelijke sfeer. In de directe omgeving vind je basisscholen, sportvoorzieningen, het Noord-Aa recreatiegebied en winkelcentrum Noordhove voor de dagelijkse boodschappen. Met de mooie Benthuizerplas op loopafstand is ook ontspanning in de natuur altijd dichtbij. Dankzij de goede verbindingen naar de A12, Den Haag en het centrum van Zoetermeer, woon je hier in alle rust maar met alles binnen handbereik. Ook het openbaar vervoer is goed geregeld, met bushaltes en RandstadRail in de buurt. Een ideale locatie voor wie ruim, rustig en toch centraal wil wonen.

BIJZONDERHEDEN

- Bouwjaar 2002
- Goede staat van onderhoud
- woonoppervlakte totaal 382 m2
- 168 m2 totale buitenruimte
- 1262 m3 inhoud
- 2 keukens, 2 woonkamers, 3 badkamers, 9 slaapkamers
- voortuin, achtertuin, 3 balkons, 3 dakterrassen
- 4 verdiepingen
- Energielabel A
- Voorzien van 12 zonnepanelen
- Voorzien van onderhoudsarme aluminium kozijnen met HR++ beglazing
- Dak-, muur- en vloerisolatie
- Vloerverwarming op de begane grond
- Carport en parkeergelegenheid op eigen terrein
- Laadpaal op eigen terrein;
- Ruim voldoende parkeergelegenheid voor en direct nabij de woning
- Reeds gesplitst in appartement; Bellefleurhof 12a en 12b. Eventueel apart te koop.
- Er is een vergunning aanwezig om een extra slaapkamer van 24 m2 te realiseren (achterzijde, derde verdieping).

OPLEVERING: IN OVERLEG

Kenmerken

Basiskenmerken

  • Status Beschikbaar
  • Koopsom € 1.345.000 k.k.
  • Woonoppervlakte ca. 382 m2
  • Aantal slaapkamers 9
  • Bouwjaar 2002

Overdracht

  • Aanvaarding In overleg

Bouwvorm & onderhoud

  • Soort object Halfvrijstaande woning
  • Soort woning Herenhuis
  • Bouwjaar 2002
  • Soort bouw woonhuis
  • Ligging Aan park, in woonwijk, vrij uitzicht

Oppervlakte & inhoud

  • Gebruiksoppervlakte 382m2
  • Inhoud 1262m3
  • Aantal kamers 12
  • Aantal slaapkamers 9
  • Aantal woonlagen 4 woonlagen

Energie & installatie

  • Energielabel A
  • Isolatie Dakisolatie, muurisolatie, vloerisolatie
  • Verwarming Cv ketel, vloerverwarming gedeeltelijk, gashaard
  • Warm water Cv ketel
  • C.v.-ketel type GAS
  • C.v.-ketel bouwjaar 2015
  • Energie einddatum 31-12-2030

Bergruimte

  • Schuur / berging Vrijstaand steen
  • Voorzieningen Voorzien van elektra

Parkeergelegenheid

  • Parkeerfaciliteiten Openbaar parkeren, op eigen terrein
  • Garage Carport, parkeerplaats, geen garage

Dak

  • Soort dak Plat dak

Overig

  • Onderhoud binnen Goed
  • Onderhoud buiten Goed
  • Bijzonderheden Gestoffeerd, dubbele bewoning mogelijk, dubbele bewoning aanwezig, toegankelijk voor ouderen, toegankelijk voor minder validen
  • Permanente bewoning Ja
  • Huidig gebruik Woonruimte
  • Huidige bestemming Woonruimte

Voorzieningen

  • Voorzieningen Airconditioning, rookkanaal, schuifpui, frans balkon, glasvezel kabel, zonnepanelen

Buitenruimte

  • Hoofdtuin ACHTERTUIN
  • Oppervlakte hoofdtuin 35m2
  • Kwaliteit tuin Verzorgd

Kadastrale gegevens

Meer kenmerken
Ontdek online wat jouw huis waard is

Met de online waardecheck ontdek je in een paar minuten de geschatte waarde van jouw huis

Online waardecheck

In de buurt

Geïnteresseerd?

Bel met Ruseler & Van Herk Makelaars

shape

Stuur een bericht

* Maximaal 255 tekens
privacyverklaring