Chat with us, powered by LiveChat Schakelweg 30, 3192 JM HOOGVLIET ROTTERDAM - Ruseler & Van Herk Makelaars

Hoogvliet Rotterdam

Schakelweg  30

€ 350.000,- k.k.

Omschrijving

Ruime 4-kamer eengezinswoning met zonnige tuin in de wijk ''Zalmplaat''! Ontdek deze ruime 4-kamer eengezinswoning met een zonnige tuin en stenen berging, gelegen op 128 m² eigen grond in de rustige en centrale wijk "Zalmplaat". De woning ligt aan een brede, rustige straat en is voorzien van kunststof kozijnen en dubbele beglazing. De ligging biedt gemakkelijke toegang…

Ruime 4-kamer eengezinswoning met zonnige tuin in de wijk ''Zalmplaat''!

Ontdek deze ruime 4-kamer eengezinswoning met een zonnige tuin en stenen berging, gelegen op 128 m² eigen grond in de rustige en centrale wijk "Zalmplaat". De woning ligt aan een brede, rustige straat en is voorzien van kunststof kozijnen en dubbele beglazing. De ligging biedt gemakkelijke toegang tot diverse voorzieningen en recreatie.

CENTRAAL GELEGEN IN EEN RUSTIGE WOONWIJK
De woning bevindt zich in de wijk "Zalmplaat", een rustige, groene wijk in Hoogvliet, Rotterdam. Deze wijk, ontwikkeld in de jaren '60 en '70, staat bekend om zijn mix van eengezinswoningen, rijtjeshuizen en appartementen. Voorzieningen zoals scholen, een winkelcentrum en sportfaciliteiten zijn op loopafstand te vinden. Bovendien is het openbaar vervoer goed geregeld met meerdere buslijnen en nabijgelegen metrostations, waardoor u eenvoudig de rest van Rotterdam kunt bereiken. De wijk heeft een hechte, diverse gemeenschap en biedt een ideale combinatie van stedelijke voorzieningen en een rustige leefomgeving.

FUNCTIONELE INDELING
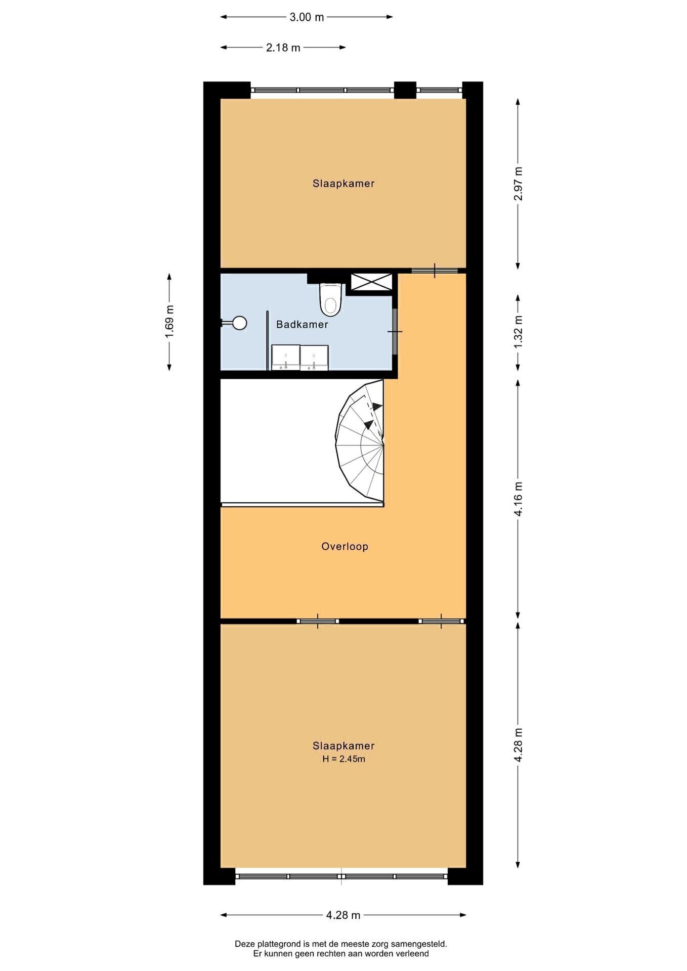
De woning beschikt over een praktische en moderne indeling verdeeld over drie verdiepingen. Bij binnenkomst vindt u een hal/entree met meterkast, garderoberuimte, toilet met fonteintje en een vaste kast met cv-combiketel. De open woonkamer aan de achterzijde biedt uitzicht op en toegang tot de zonnige tuin met een ruime vrijstaande stenen berging voorzien van elektra. De keuken aan de voorzijde is uitgerust met inbouwapparatuur en een spiltrap leidt naar de eerste verdieping. Hier vindt u een ruime overloop met vide, twee slaapkamers en een complete badkamer met een ruime douche, dubbele wastafel en toilet. De tweede verdieping, bereikbaar via een vaste spiltrap, omvat een overloop met wasmachine- en drogeropstelling, toegang tot het platte dak en een vierde slaapkamer met een westelijk gelegen balkon. Deze indeling biedt een comfortabele en efficiënte woonervaring, ideaal voor gezinnen.

COMFORTABELE BUITENRUIMTE
De woning beschikt over een zonnige tuin en een balkon op het westen, waardoor u altijd kunt genieten van het buitenleven. De ruime vrijstaande stenen berging biedt voldoende opslagruimte en is voorzien van elektra, ideaal voor hobby's of extra bergruimte. De tuin is bovendien gemakkelijk bereikbaar via een afsluitbare poort, wat extra veiligheid en privacy biedt.

CONCLUSIE
Deze 4-kamer eengezinswoning in de wijk "Zalmplaat" biedt een ideale combinatie van ruimte, comfort en een centrale, rustige ligging. Met zijn moderne voorzieningen, functionele indeling en aantrekkelijke buitenruimtes is dit de perfecte woning voor gezinnen die op zoek zijn naar een comfortabele en praktische leefomgeving.

KENMERKEN:
- Bouwjaar 1974
- Energielabel B
- Woonoppervlakte van ca. 126m2
- Eigen grond
- Verwarming en warm water middel cv-ketel (Intergas 2021)
- Volledig voorzien van kunststofkozijnen en dubbele beglazing
- Bijdrage Vereniging "De Luifel" ca. € 95,- per jaar t.b.v. de dakbedekking berging
- Gevels ca. 5 jaar geleden geïmpregneerd
- Berging in de tuin
- Dakterras (Oosten)
- Ouderdomsclausule en niet-zelfbewoningsclausule van toepassing
- Projectnotaris van toepassing
- Oplevering in overleg

INTERESSE? MAAK DAN SNEL EEN AFSPRAAK!
Ons advies is om bij het kopen van je nieuwe huis je eigen NVM-makelaar mee te nemen.

TOELICHTINGSCLAUSULE NEN2580
De Meetinstructie is gebaseerd op de NEN2580. De Meetinstructie is bedoeld om een meer eenduidige manier van meten toe te passen voor het geven van een indicatie van de gebruiksoppervlakte. De Meetinstructie sluit verschillen in meetuitkomsten niet volledig uit, door bijvoorbeeld interpretatieverschillen, afrondingen of beperkingen bij het uitvoeren van de meting.

KOOPOVEREENKOMST PAS RECHTSGELDIG NA ONDERTEKENING
Een mondelinge overeenstemming tussen de particuliere verkoper en de particuliere koper is niet rechtsgeldig. Met andere woorden: er is geen koop. Er is pas sprake van een rechtsgeldige koop als de particuliere verkoper en de particuliere koper de koopovereenkomst hebben ondertekend. Dit vloeit voort uit artikel 7:2 Burgerlijk Wetboek. Een bevestiging van de mondelinge overeenstemming per e-mail of een toegestuurd concept van de koopovereenkomst wordt overigens niet gezien als een 'ondertekende koopovereenkomst'

“Deze informatie is door ons met de nodige zorgvuldigheid samengesteld. Onzerzijds wordt echter geen enkele aansprakelijkheid aanvaard voor enige onvolledigheid, onjuistheid of anderszins, dan wel de gevolgen daarvan. Alle opgegeven maten en oppervlakten zijn indicatief.”

Kenmerken

Basiskenmerken

  • Status Verkocht onder voorbehoud
  • Koopsom € 350.000 k.k.
  • Woonoppervlakte ca. 126 m2
  • Aantal slaapkamers 3
  • Bouwjaar 1974

Overdracht

  • Aanvaarding In overleg

Bouwvorm & onderhoud

  • Soort object Tussenwoning
  • Soort woning Eengezinswoning
  • Bouwjaar 1974
  • Soort bouw woonhuis
  • Ligging Aan rustige weg, in woonwijk

Oppervlakte & inhoud

  • Gebruiksoppervlakte 126m2
  • Perceeloppervlakte 128m2
  • Inhoud 466m3
  • Aantal kamers 4
  • Aantal slaapkamers 3
  • Aantal woonlagen 3 woonlagen

Energie & installatie

  • Energielabel B
  • Isolatie Dubbel glas
  • Verwarming Cv ketel
  • Warm water Cv ketel
  • C.v.-ketel type GAS
  • C.v.-ketel bouwjaar 2021
  • Energie einddatum 19-06-2034

Bergruimte

  • Schuur / berging Vrijstaand steen
  • Voorzieningen Voorzien van elektra

Parkeergelegenheid

  • Parkeerfaciliteiten Openbaar parkeren
  • Garage Geen garage

Dak

  • Soort dak Plat dak

Overig

  • Onderhoud binnen Goed
  • Onderhoud buiten Goed
  • Bijzonderheden Gedeeltelijk gestoffeerd
  • Permanente bewoning Ja
  • Huidig gebruik Woonruimte
  • Huidige bestemming Woonruimte

Voorzieningen

  • Voorzieningen Tv kabel, glasvezel kabel, natuurlijke ventilatie

Buitenruimte

  • Hoofdtuin ACHTERTUIN
  • Oppervlakte hoofdtuin 72m2
  • Ligging hoofdtuin OOST
  • Kwaliteit tuin Normaal

Kadastrale gegevens

  • Perceeloppervlakte 128 m2
Meer kenmerken
Ontdek online wat jouw huis waard is

Met de online waardecheck ontdek je in een paar minuten de geschatte waarde van jouw huis

Online waardecheck

In de buurt