Chat with us, powered by LiveChat Koestraat 134 h, 2871 DT SCHOONHOVEN - Ruseler & Van Herk Makelaars

Schoonhoven

Koestraat  134 h

€ 265.000,- k.k.

Omschrijving

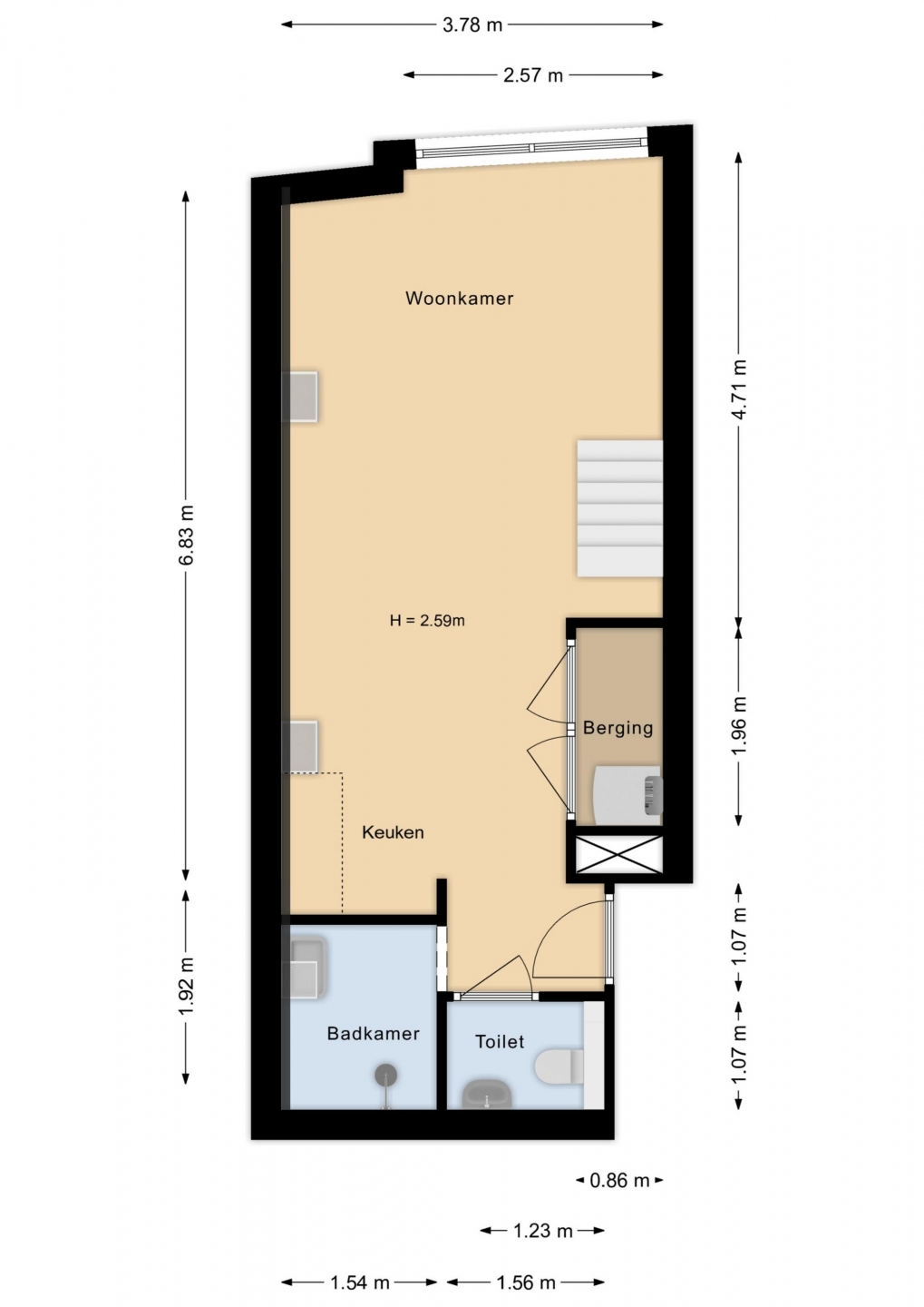
COMPACT WONEN MET VERRASSEND VEEL RUIMTE Op zoek naar een moderne studio met een unieke indeling en energiezuinige basis? Dan is Koestraat 134h in Schoonhoven zeker een bezichtiging waard. Deze recent verbouwde studio beschikt over een entresol – ideaal als slaapruimte – en heeft alles in huis voor comfortabel en praktisch wonen. Gelegen in een rustige straat in het…

COMPACT WONEN MET VERRASSEND VEEL RUIMTE
Op zoek naar een moderne studio met een unieke indeling en energiezuinige basis? Dan is Koestraat 134h in Schoonhoven zeker een bezichtiging waard. Deze recent verbouwde studio beschikt over een entresol – ideaal als slaapruimte – en heeft alles in huis voor comfortabel en praktisch wonen. Gelegen in een rustige straat in het centrum, met alle voorzieningen binnen handbereik.

VERKOOPPROCEDURE
Op dinsdag 20 januari en vrijdag 23 januari wordt er een open huis voor de woningen van 15.30-17.00u georganiseerd. Je hoeft je niet aan te melden voor een van deze middagen.

Mocht je na de bezichtiging van het huis enthousiast zijn en een bod willen uitbrengen, dan vragen wij je voor donderdag 29 januari 2026, uiterlijk 15:00 uur je bod te doen, via het biedingsformulier in je Move account. Deze kun je vinden onder het kopje "Bod uitbrengen". Het MOVE account wordt na je bezoek aan het open huis aan je toegestuurd zodat we je gericht de informatie van je favoriete appartement kunnen toesturen.
Mocht je hier vragen hebben over de verkoopprocedure dan kan je je vragen richten aan nieuwbouw@vanherk.nl.

SLIM INGEDEELD MET ENTRESOL
Wat deze studio bijzonder maakt, is de hoge plafondruimte met een entresol. Deze verhoogde slaapverdieping zorgt ervoor dat je de begane vloer volledig kunt gebruiken voor wonen en koken. De grote raampartijen zorgen voor een fijne lichtinval vanuit het westen, en geven de ruimte een open, loftachtige sfeer.

De badkamer is modern en strak afgewerkt met douche, wastafel en toilet. De keuken is nog niet geplaatst, maar de aansluitingen zijn al aanwezig. Je kunt dus zelf kiezen wat het beste bij je past. De wanden zijn behangklaar afgewerkt, waardoor je snel jouw eigen stijl kunt doorvoeren.

DUURZAAM EN KLAAR VOOR DE TOEKOMST
Net als de andere appartementen in dit pand is ook nummer 134h voorzien van vloerverwarming, een warmtepomp en volledig dubbel glas. Dit alles draagt bij aan een comfortabel binnenklimaat. Het energielabel A+ bevestigt dat dit een toekomstbestendige woning is.

RUSTIG WONEN IN HARTJE SCHOONHOVEN

Je woont hier in een rustige straat midden in het historische centrum. Alles wat je nodig hebt, supermarkt, horeca, winkels en openbaar vervoer, ligt op loopafstand. Met de auto zit je zo op de N210 richting de A27 of A2. Parkeren kan in de directe omgeving.

BIJZONDERHEDEN:
- Slaapvide (entresol) voor extra ruimte, inclusief bed (blijft achter)
- Behangklare wanden
- Keuken nog zelf te plaatsen (aansluitingen aanwezig)
- Vloerverwarming en warmtepomp
- Volledig voorzien van dubbel glas
- Energielabel A+
- Gezamenlijke tuin met gemeenschappelijke berging en fietsenstalling
- Rustige straat in het centrum van Schoonhoven
- Oplevering: uiterlijk binnen 3 maanden na ondertekening

TOELICHTINGSCLAUSULE NEN2580
De Meetinstructie is gebaseerd op de NEN2580. De Meetinstructie is bedoeld om een meer eenduidige manier van meten toe te passen voor het geven van een indicatie van de gebruiksoppervlakte. De Meetinstructie sluit verschillen in meetuitkomsten niet volledig uit, door bijvoorbeeld interpretatieverschillen, afrondingen of beperkingen bij het uitvoeren van de meting.

KOOPOVEREENKOMST PAS RECHTSGELDIG NA ONDERTEKENING
Een mondelinge overeenstemming tussen de particuliere verkoper en de particuliere koper is niet rechtsgeldig. Met andere woorden: er is geen koop. Er is pas sprake van een rechtsgeldige koop als de particuliere verkoper en de particuliere koper de koopovereenkomst hebben ondertekend. Dit vloeit voort uit artikel 7:2 Burgerlijk Wetboek. Een bevestiging van de mondelinge overeenstemming per e-mail of een toegestuurd concept van de koopovereenkomst wordt overigens niet gezien als een 'ondertekende koopovereenkomst'

“Deze informatie is door ons met de nodige zorgvuldigheid samengesteld. Onzerzijds wordt echter geen enkele aansprakelijkheid aanvaard voor enige onvolledigheid, onjuistheid of anderszins, dan wel de gevolgen daarvan. Alle opgegeven maten en oppervlakten zijn indicatief.”

Kenmerken

Basiskenmerken

  • Status Beschikbaar
  • Koopsom € 265.000 k.k.
  • Woonoppervlakte ca. 33 m2
  • Aantal slaapkamers 1
  • Bouwjaar 1650

Overdracht

  • Aanvaarding In overleg

Bouwvorm & onderhoud

  • Bouwjaar 1650
  • Soort bouw woonhuis
  • Ligging Aan rustige weg, in centrum, vrij uitzicht

Oppervlakte & inhoud

  • Gebruiksoppervlakte 33m2
  • Inhoud 142m3
  • Aantal kamers 1
  • Aantal slaapkamers 1
  • Aantal woonlagen 1 woonlagen
  • Overige inpandige ruimte 4m2

Energie & installatie

  • Energielabel A+
  • Isolatie Dakisolatie, muurisolatie, vloerisolatie, dubbel glas
  • Verwarming Vloerverwarming gedeeltelijk, warmtepomp
  • Energie einddatum 12-01-2030

Parkeergelegenheid

  • Parkeerfaciliteiten Openbaar parkeren
  • Garage Geen garage

Overig

  • Onderhoud binnen Goed tot uitstekend
  • Onderhoud buiten Goed tot uitstekend
  • Bijzonderheden Monumentaal pand, monument
  • Permanente bewoning Ja
  • Huidig gebruik Woonruimte
  • Huidige bestemming Woonruimte

Voorzieningen

  • Voorzieningen Balansventilatie

Kadastrale gegevens

  • Perceelnummer 3127
Meer kenmerken
Ontdek online wat jouw huis waard is

Met de online waardecheck ontdek je in een paar minuten de geschatte waarde van jouw huis

Online waardecheck

Media

In de buurt

Geïnteresseerd?

Bel met Ruseler & Van Herk Makelaars

shape

Stuur een bericht

* Maximaal 255 tekens
privacyverklaring