Chat with us, powered by LiveChat Joubertstraat 205, 2806 GD GOUDA - Ruseler & Van Herk Makelaars

Gouda

Joubertstraat  205

€ 425.000,- k.k.

Omschrijving

CHARMANTE JAREN ’30 WONING OP FIJNE LOCATIE In een brede, groene laan in de populaire wijk Kort Haarlem ligt dit karakteristieke jaren ’30 huis met diepe achtertuin op het oosten. Een fijne plek waar je rustig woont, maar toch alles binnen handbereik hebt. Ideaal voor starters en jonge doorstromers die op zoek zijn naar een huis met sfeer én mogelijkheden om het verder…

CHARMANTE JAREN ’30 WONING OP FIJNE LOCATIE
In een brede, groene laan in de populaire wijk Kort Haarlem ligt dit karakteristieke jaren ’30 huis met diepe achtertuin op het oosten. Een fijne plek waar je rustig woont, maar toch alles binnen handbereik hebt. Ideaal voor starters en jonge doorstromers die op zoek zijn naar een huis met sfeer én mogelijkheden om het verder naar eigen smaak te maken.

LICHTE WOONKAMER MET FIJNE INDELING
Bij binnenkomst valt direct de prettige indeling op. De doorzon woonkamer zorgt voor een mooie lichtinval gedurende de dag, met aan de voorzijde uitzicht op de brede straat en aan de achterzijde zicht op de tuin. Dit is zo’n ruimte waar je makkelijk een gezellige zithoek en een ruime eethoek kwijt kunt.
De verbinding met de tuin maakt het geheel extra prettig. Zeker op zonnige dagen zet je de deur open en loopt binnen moeiteloos over in buiten. De basis is netjes en functioneel, waardoor je hier direct kunt wonen en tegelijkertijd de ruimte hebt om het stap voor stap naar eigen smaak te moderniseren.

De keuken is praktisch ingericht en uitgevoerd in een lichte kleurstelling, wat zorgt voor een frisse uitstraling. Je hebt hier voldoende werk- en opbergruimte en alle benodigde apparatuur waaronder een vaatwasser, gasfornuis, afzuiging, koel-vriescombinatie en oven/magnetron aanwezig is.
Wat deze keuken extra aantrekkelijk maakt, is de directe toegang naar de tuin. Ideaal voor wie graag buiten eet of een kop koffie drinkt in de ochtendzon. De ligging op het oosten betekent dat je hier al vroeg op de dag van de zon kunt genieten.

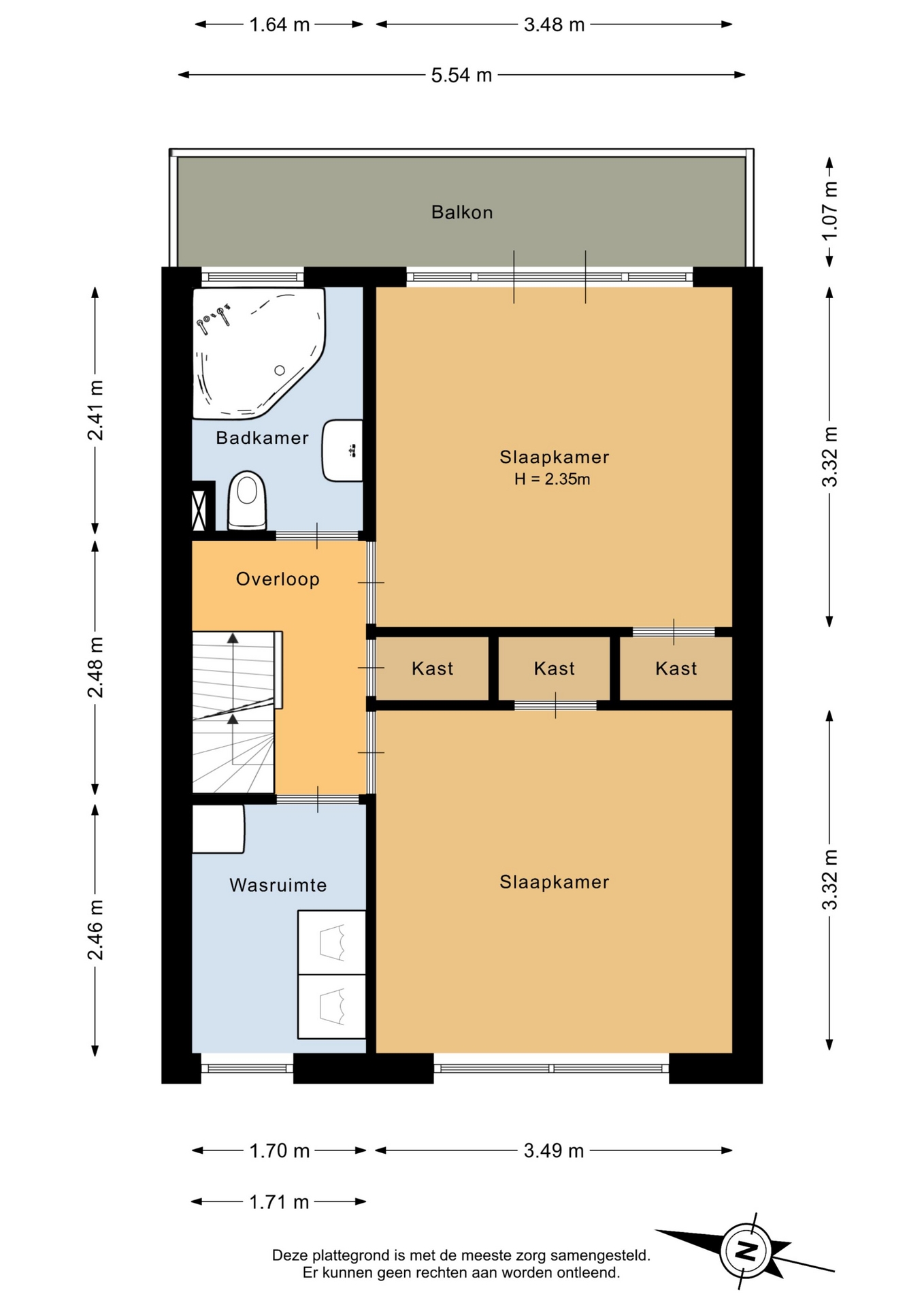
DRIE GOEDE SLAAPKAMERS
Op de 1e verdieping vind je in totaal 2 slaapkamers, waarbij de grootste kamer zich aan de voorzijde bevindt. Deze is ruim genoeg voor een comfortabel tweepersoonsbed en kastruimte. Ook bevindt zich hier een praktische wasruimte, ideaal!! Op de 2e verdieping nog een 3e slaapkamer en een ruime overloop.
De badkamer is functioneel en biedt de basis, maar geeft ook de mogelijkheid om deze in de toekomst naar eigen wens te vernieuwen.

DIEPE TUIN OP HET OOSTEN
De achtertuin is een van de fijne pluspunten van dit huis. Met een goede diepte en een ligging op het oosten heb je hier een heerlijke plek om de dag te starten in de zon. Of je nu kiest voor een terras, groen of een combinatie van beide: hier kun je alle kanten op.
Daarnaast biedt de tuin voldoende ruimte voor een berging of het stallen van fietsen, wat het dagelijks gebruik extra praktisch maakt.

FIJN WONEN IN KORT HAARLEM
De Joubertstraat ligt in de geliefde wijk Kort Haarlem in Gouda. Een buurt die bekendstaat om zijn karakteristieke bebouwing, brede lanen en prettige woonklimaat. Hier woon je rustig, maar wel op korte afstand van alles wat je nodig hebt.
Voor de dagelijkse boodschappen kun je terecht bij diverse supermarkten en winkels in de buurt. Ook scholen, sportverenigingen en horecagelegenheden zijn goed vertegenwoordigd. Het historische centrum van Gouda ligt op korte fietsafstand, waar je geniet van gezellige terrassen, winkels en cultuur.
Qua bereikbaarheid zit je hier ook goed. Station Gouda is eenvoudig te bereiken en biedt snelle verbindingen richting onder andere Rotterdam, Den Haag en Utrecht. Ook de uitvalswegen zijn goed bereikbaar, waardoor je met de auto snel onderweg bent.
Kortom: een fijne, complete woonomgeving waar je met veel plezier kunt wonen.

Dankzij de indeling en het woonoppervlak van circa 110 m² heb je hier een huis met potentie, waar je echt je eigen thuis van kunt maken.

KENMERKEN:
- Vraagprijs: € 425.000,-
- Gelegen aan een brede laan in Kort Haarlem;
- Tuin op het oosten;
- Woonoppervlakte: ca. 110 m²;
- Perceeloppervlakte: ca. 135 m²;
- Bouwjaar: omstreeks 1930;
- Aantal verdiepingen: 2;
- Aantal slaapkamers: 3;
- Ideale waskamer aanwezig;
- Energielabel: D;
- Oplevering: in overleg.

TOELICHTINGSCLAUSULE NEN2580
De Meetinstructie is gebaseerd op de NEN2580. De Meetinstructie is bedoeld om een meer eenduidige manier van meten toe te passen voor het geven van een indicatie van de gebruiksoppervlakte. De Meetinstructie sluit verschillen in meetuitkomsten niet volledig uit, door bijvoorbeeld interpretatieverschillen, afrondingen of beperkingen bij het uitvoeren van de meting.

KOOPOVEREENKOMST PAS RECHTSGELDIG NA ONDERTEKENING
Een mondelinge overeenstemming tussen de particuliere verkoper en de particuliere koper is niet rechtsgeldig. Met andere woorden: er is geen koop. Er is pas sprake van een rechtsgeldige koop als de particuliere verkoper en de particuliere koper de koopovereenkomst hebben ondertekend. Dit vloeit voort uit artikel 7:2 Burgerlijk Wetboek. Een bevestiging van de mondelinge overeenstemming per e-mail of een toegestuurd concept van de koopovereenkomst wordt overigens niet gezien als een 'ondertekende koopovereenkomst'

“Deze informatie is door ons met de nodige zorgvuldigheid samengesteld. Onzerzijds wordt echter geen enkele aansprakelijkheid aanvaard voor enige onvolledigheid, onjuistheid of anderszins, dan wel de gevolgen daarvan. Alle opgegeven maten en oppervlakten zijn indicatief.”

Kenmerken

Basiskenmerken

  • Status Beschikbaar
  • Koopsom € 425.000 k.k.
  • Woonoppervlakte ca. 110 m2
  • Aantal slaapkamers 3
  • Bouwjaar 1930

Overdracht

  • Aanvaarding In overleg

Bouwvorm & onderhoud

  • Soort object Tussenwoning
  • Soort woning Eengezinswoning
  • Bouwjaar 1930
  • Soort bouw woonhuis
  • Ligging In woonwijk

Oppervlakte & inhoud

  • Gebruiksoppervlakte 110m2
  • Perceeloppervlakte 135m2
  • Inhoud 386m3
  • Aantal kamers 5
  • Aantal slaapkamers 3
  • Aantal woonlagen 3 woonlagen

Energie & installatie

  • Energielabel D
  • Isolatie Hr glas
  • Verwarming Cv ketel
  • Warm water Cv ketel, elektrische boiler eigendom
  • C.v.-ketel type GAS
  • C.v.-ketel bouwjaar 2010
  • Energie einddatum 21-10-2034

Bergruimte

  • Schuur / berging Vrijstaand hout
  • Voorzieningen Voorzien van elektra

Parkeergelegenheid

  • Parkeerfaciliteiten Openbaar parkeren
  • Garage Geen garage

Dak

  • Soort dak Zadeldak

Overig

  • Onderhoud binnen Redelijk
  • Onderhoud buiten Redelijk
  • Bijzonderheden Gedeeltelijk gestoffeerd
  • Permanente bewoning Ja
  • Huidig gebruik Woonruimte
  • Huidige bestemming Woonruimte

Voorzieningen

  • Voorzieningen Glasvezel kabel

Buitenruimte

  • Hoofdtuin ACHTERTUIN
  • Oppervlakte hoofdtuin 69m2
  • Ligging hoofdtuin OOST
  • Kwaliteit tuin Normaal

Kadastrale gegevens

  • Perceelnummer 2213
  • Perceeloppervlakte 135 m2
Meer kenmerken
Ontdek online wat jouw huis waard is

Met de online waardecheck ontdek je in een paar minuten de geschatte waarde van jouw huis

Online waardecheck

In de buurt

Geïnteresseerd?

Bel met Ruseler & Van Herk Makelaars

shape

Stuur een bericht

* Maximaal 255 tekens
privacyverklaring