Chat with us, powered by LiveChat Bovensim 28, 3192 HA HOOGVLIET ROTTERDAM - Ruseler & Van Herk Makelaars

Hoogvliet Rotterdam

Bovensim  28

€ 375.000,- k.k.

Omschrijving

Bovensim 28 Hoogvliet Rotterdam RUIM GEZINSHUIS MET DIEPE TUIN EN VRIJE LIGGING Welkom aan de Bovensim 28, een fijne eengezinswoning met veel leefruimte, vier slaapkamers en een diepe zonnige achtertuin met sfeervolle overkapping. Deze goed onderhouden tussenwoning is ideaal voor een jong gezin dat op zoek is naar rust, ruimte én comfort. De ligging aan een autoluw pad…

Bovensim 28 Hoogvliet Rotterdam

RUIM GEZINSHUIS MET DIEPE TUIN EN VRIJE LIGGING
Welkom aan de Bovensim 28, een fijne eengezinswoning met veel leefruimte, vier slaapkamers en een diepe zonnige achtertuin met sfeervolle overkapping. Deze goed onderhouden tussenwoning is ideaal voor een jong gezin dat op zoek is naar rust, ruimte én comfort. De ligging aan een autoluw pad zorgt voor extra privacy en rust aan de voorzijde, terwijl je aan de achterzijde geniet van een tuin van maar liefst 17 meter diep op het zuidoosten – perfect voor lange zomerdagen in eigen tuin.

Het huis is volledig voorzien van hardhouten kozijnen met HR++ glas en beschikt over energielabel B. Bovendien is recent in 2024 het buitenschilderwerk aangepakt, wat zorgt voor een frisse uitstraling. Extra handig zijn de berging aan de achterzijde, een tweede schuur achterin de tuin én de achterom. De woning ligt in de geliefde wijk Zalmplaat, met scholen, winkels, natuur en openbaar vervoer op loopafstand.

LICHTE WOONKAMER EN OPEN KEUKEN
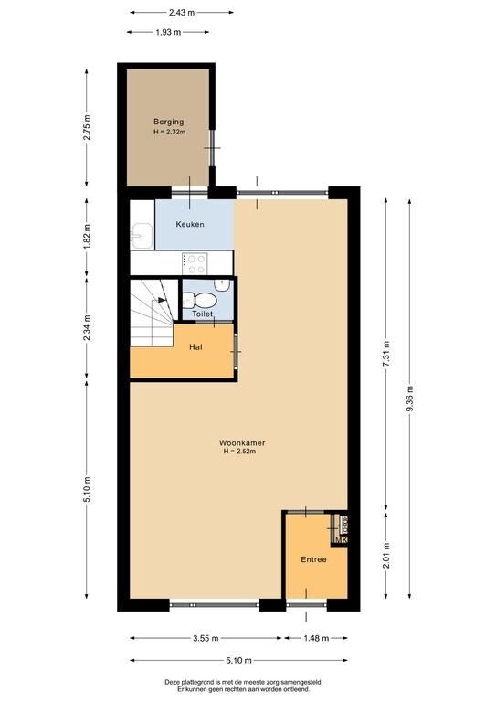
Via de entree kom je binnen in de hal met meterkast, waarna je doorloopt naar de royale woonkamer. Aan de voorzijde is het zitgedeelte met prettig vrij uitzicht, en aan de achterzijde vind je het eetgedeelte met directe toegang tot de tuin. De grote ramen zorgen voor veel natuurlijk licht, en de neutrale afwerking maakt het een fijne basis voor verschillende interieurstijlen.

De halfopen keuken in hoekopstelling is uitgerust met een kookplaat, afzuigkap, oven en spoelbak. Vanuit de keuken loop je door naar de aangebouwde berging, die ook via de tuin toegankelijk is – ideaal voor het stallen van fietsen of als extra opslagruimte.

In de tussenhal, tussen woonkamer en keuken, bevindt zich het keurige toilet met fonteintje en de trapopgang naar boven.

VIER RUIME SLAAPKAMERS EN ZOLDERVERDIEPING
Op de eerste verdieping zijn drie comfortabele slaapkamers te vinden, allemaal met rechte wanden waardoor de ruimtes optimaal te benutten zijn. Deze verdieping is perfect geschikt voor een gezin met kinderen of voor wie graag een werkkamer of logeerkamer in huis wil. De badkamer is functioneel en voorzien van een douche, wastafel en tweede toilet.

De tweede verdieping is verrassend ruim en herbergt de vierde slaapkamer. Dankzij het grote Velux dakraam komt hier veel daglicht binnen, wat deze kamer een prettige plek maakt voor bijvoorbeeld een ouderslaapkamer, studio of thuiskantoor. Op de overloop is een vaste kast met daarin de cv-combiketel (Remeha HR, 2017) en de mechanische ventilatie-unit.

GROTE ACHTERTUIN MET OVERKAPPING EN ACHTEROM
De achtertuin is met zijn 17 meter diepte echt een verlengstuk van het huis. De tuin is keurig aangelegd met een combinatie van gazon en bestrating. Achterin de tuin staat een houten schuur met een sfeervolle overkapping – een heerlijke plek om te ontspannen, barbecueën of te loungen op warme dagen. Dankzij de ligging op het zuidoosten profiteer je hier van ochtend- tot laat in de middagzon.

De tuin is tevens bereikbaar via een achterom, wat ideaal is voor het naar binnen rijden van fietsen of het ophalen van tuinafval. De voortuin is eveneens netjes aangelegd en doordat de woning aan een rustig pad ligt, heb je geen inkijk van voorbijgangers of verkeer.

KINDVRIENDELIJK EN VOORZIENINGEN OM DE HOEK
De wijk Zalmplaat staat bekend als rustig en kindvriendelijk. Met basisscholen, speelvoorzieningen, openbaar vervoer en winkels op loopafstand woon je hier bijzonder praktisch. Binnen vijf minuten wandel je naar metrostation Zalmplaat, waarmee je snel in het centrum van Rotterdam bent. Ook recreatie is dichtbij: het Ruigeplaatbos, het park langs de Oude Maas en meerdere sportvoorzieningen bevinden zich in de directe omgeving.

De woning is gelegen op erfpachtgrond, waarbij de canon is afgekocht tot 28 augustus 2038. De erfpacht loopt tot 2087. Er geldt een niet-zelfbewoningsclausule.

KENMERKEN:
- Woonoppervlakte: 117 m²
- Perceeloppervlakte: ca. 147 m²
- Bouwjaar: 1989
- Energielabel: B
- Achtertuin op het zuidoosten van ca. 17 meter diep
- Volledig voorzien van hardhouten kozijnen met HR++ glas
- Schilderwerk buitenzijde uitgevoerd in 2024
- Cv-combiketel Remeha HR (2017)
- Berging aan de achterzijde én extra schuur met overkapping
- Erfpacht afgekocht tot 28-08-2038 (looptijd tot 2087)
- Niet-zelfbewoningsclausule van toepassing
- Oplevering in overleg

Toelichtingsclausule NEN2580:;
De Meetinstructie is gebaseerd op de NEN2580. De Meetinstructie is bedoeld om een meer eenduidige manier van meten toe te passen voor het geven van een indicatie van de gebruiksoppervlakte. De Meetinstructie sluit verschillen in meetuitkomsten niet volledig uit, door bijvoorbeeld interpretatieverschillen, afrondingen of beperkingen bij het uitvoeren van de meting.

“Deze informatie is door ons met de nodige zorgvuldigheid samengesteld. Onzerzijds wordt echter geen enkele aansprakelijkheid aanvaard voor enige onvolledigheid, onjuistheid of anderszins, dan wel de gevolgen daarvan. Alle opgegeven maten en oppervlakten zijn indicatief.”

Koopovereenkomst pas rechtsgeldig na ondertekening:
Een mondelinge overeenstemming tussen de particuliere verkoper en de particuliere koper is niet rechtsgeldig. Met andere woorden: er is geen koop. Er is pas sprake van een rechtsgeldige koop als de particuliere verkoper en de particuliere koper de koopovereenkomst hebben ondertekend. Dit vloeit voort uit artikel 7:2 Burgerlijk Wetboek. Een bevestiging van de mondelinge overeenstemming per e-mail of een toegestuurd concept van de koopovereenkomst wordt overigens niet gezien als een 'ondertekende koopovereenkomst'.

Kenmerken

Basiskenmerken

  • Status Beschikbaar
  • Koopsom € 375.000 k.k.
  • Woonoppervlakte ca. 111 m2
  • Aantal slaapkamers 4
  • Bouwjaar 1989

Overdracht

  • Aanvaarding In overleg

Bouwvorm & onderhoud

  • Soort object Tussenwoning
  • Soort woning Eengezinswoning
  • Bouwjaar 1989
  • Soort bouw woonhuis
  • Ligging Aan rustige weg, in woonwijk, vrij uitzicht, open ligging

Oppervlakte & inhoud

  • Gebruiksoppervlakte 111m2
  • Perceeloppervlakte 160m2
  • Inhoud 415m3
  • Aantal kamers 5
  • Aantal slaapkamers 4
  • Aantal woonlagen 3 woonlagen
  • Overige inpandige ruimte 6m2

Energie & installatie

  • Energielabel B
  • Isolatie Dakisolatie, muurisolatie, vloerisolatie, dubbel glas
  • Verwarming Cv ketel
  • Warm water Cv ketel
  • C.v.-ketel type GAS
  • C.v.-ketel bouwjaar 2017
  • Energie einddatum 17-03-2032

Bergruimte

  • Schuur / berging Aangebouwd steen
  • Voorzieningen Voorzien van elektra

Parkeergelegenheid

  • Parkeerfaciliteiten Openbaar parkeren
  • Garage Geen garage

Dak

  • Soort dak Zadeldak

Overig

  • Onderhoud binnen Goed
  • Onderhoud buiten Goed
  • Bijzonderheden Gedeeltelijk gestoffeerd
  • Permanente bewoning Ja
  • Huidig gebruik Woonruimte
  • Huidige bestemming Woonruimte

Voorzieningen

  • Voorzieningen Mechanische ventilatie, tv kabel, dakraam, glasvezel kabel, natuurlijke ventilatie

Buitenruimte

  • Hoofdtuin ACHTERTUIN
  • Oppervlakte hoofdtuin 91m2
  • Ligging hoofdtuin ZUIDOOST
  • Kwaliteit tuin Verzorgd

Kadastrale gegevens

  • Perceelnummer 909
  • Perceeloppervlakte 160 m2
Meer kenmerken
Ontdek online wat jouw huis waard is

Met de online waardecheck ontdek je in een paar minuten de geschatte waarde van jouw huis

Online waardecheck

In de buurt

Geïnteresseerd?

Bel met Ruseler & Van Herk Makelaars

shape

Stuur een bericht

* Maximaal 255 tekens
privacyverklaring