Chat with us, powered by LiveChat Berkelstroom 30, 2721 AD ZOETERMEER - Ruseler & Van Herk Makelaars

Zoetermeer

Berkelstroom  30

€ 715.000,- k.k.

Omschrijving

RIANT WONEN MET UITZICHT OP HET WATER Aan de rand van de geliefde wijk Oosterheem ligt dit verrassend ruime en uitstekend onderhouden huis met maar liefst 157 m² woonoppervlakte. Zodra je binnenkomt valt direct de ruimte en het licht op. De tuingerichte woonkamer vormt het hart van het huis en biedt via de grote raampartijen een vrij en groen uitzicht over het water. Dit…

RIANT WONEN MET UITZICHT OP HET WATER
Aan de rand van de geliefde wijk Oosterheem ligt dit verrassend ruime en uitstekend onderhouden huis met maar liefst 157 m² woonoppervlakte. Zodra je binnenkomt valt direct de ruimte en het licht op. De tuingerichte woonkamer vormt het hart van het huis en biedt via de grote raampartijen een vrij en groen uitzicht over het water. Dit is zo’n plek waar je na een drukke dag echt even tot rust komt.

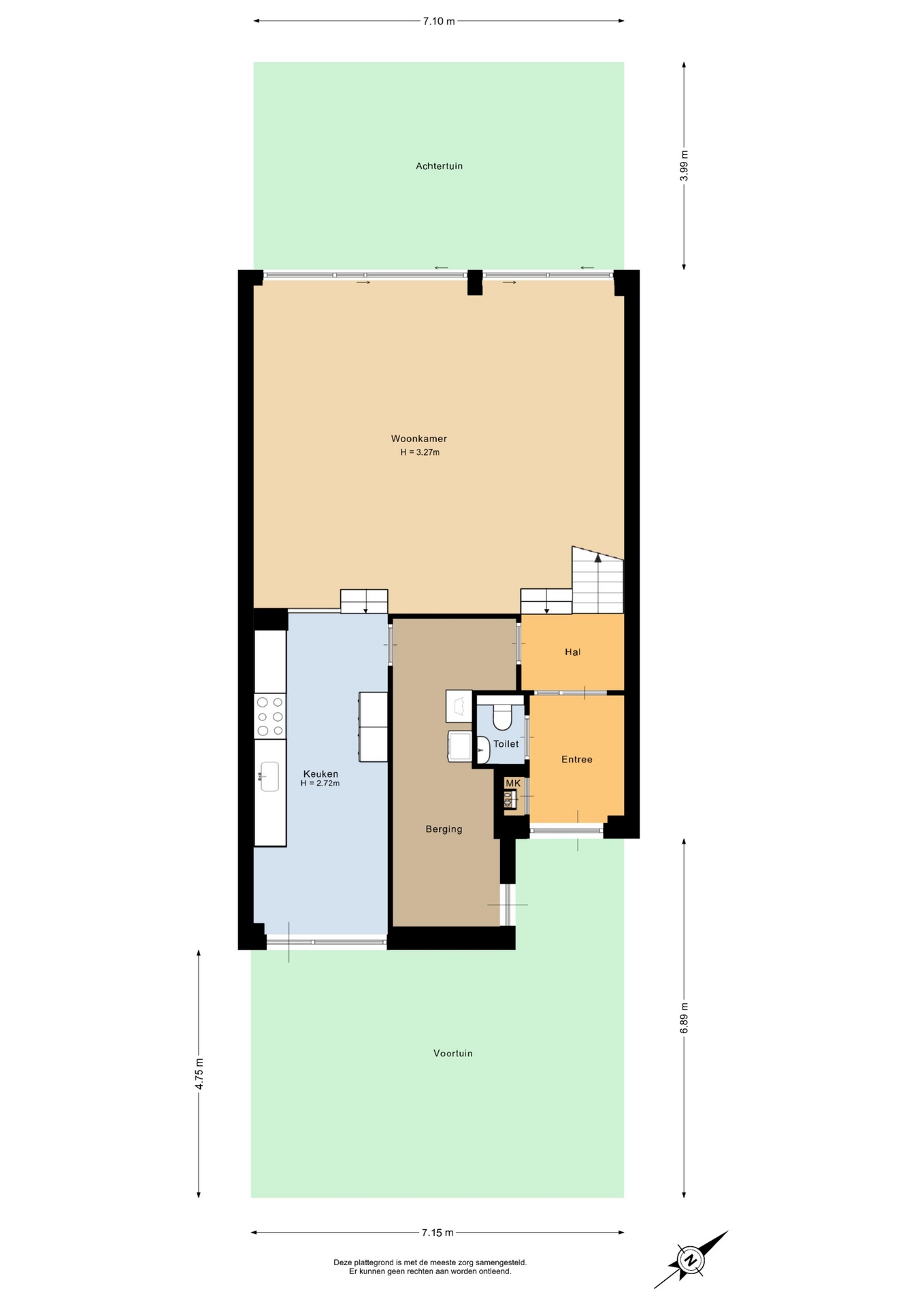
De indeling is speels door het split-level niveau maar praktisch door de grote ruimtes. De woonkamer staat in open verbinding met de eetkamer, waar je met gemak een grote eettafel kwijt kunt. Dankzij de ligging op het westen geniet je hier en in de tuin volop van de middag- en avondzon. De moderne afwerking en de goede onderhoudsstaat zorgen ervoor dat je hier zonder klussen kunt intrekken. Alles voelt verzorgd en klopt gewoon.

LICHTE LEEFKEUKEN EN FIJNE TUINKAMER
Aan de voorzijde van het huis vind je de keuken, die prettig is opgezet en van alle gemakken is voorzien. Er is voldoende werkruimte en kastruimte, waardoor koken hier echt comfortabel is.

Aan de achterzijde bevindt zich de woonkamer, een echte eyecatcher van het huis. Hier zit je letterlijk aan het water, met een vrij uitzicht dat nooit verveelt. De grote raampartijen halen buiten naar binnen en zorgen voor een prachtige lichtinval. Vanuit hier stap je zo de tuin in, die op het westen ligt. Een heerlijke plek om te genieten van de zon tot in de avonduren.

VIER RUIME SLAAPKAMERS MET MOGELIJKHEDEN
Op de verdieping vind je vier ruime slaapkamers, stuk voor stuk goed bemeten en praktisch in te delen. De grootste slaapkamer biedt volop ruimte voor een groot bed en kastruimte. Eén van de kamers is momenteel ingericht als royale inloopkast en met een schuifdeur in verbinding gebracht met de grootste slaapkamer, maar kan eenvoudig weer worden teruggebracht naar een aparte slaapkamer. Ideaal voor gezinnen of voor wie extra werk- of hobbyruimte zoekt.

De badkamer is compleet uitgevoerd met een ligbad, separate douche en wastafelmeubel. Alles is netjes onderhouden en biedt een fijne basis. Zowel boven als beneden is er een apart toilet. Daarnaast is er voldoende bergruimte aanwezig in het huis: op de begane grond is een ruime berging, toegangelijk vanuit de keuken, de hal en met een deur naar buiten.

EIGEN PARKEERPLAATSEN EN ENERGIEZUINIG
Voor de deur beschik je over maar liefst twee parkeerplaatsen op eigen terrein. Dat is niet alleen praktisch, maar ook prettig voor bezoekers. Het huis is gebouwd in 2005 en voorzien van een energielabel A++, wat zorgt voor lage energielasten en een comfortabel binnenklimaat.

De installaties zijn compleet met een CV-ketel, WTW-systeem en maar liefst 12 zonnepanelen. Dit maakt het huis klaar voor de toekomst en aantrekkelijk voor een brede doelgroep. De combinatie van ruimte, comfort en duurzaamheid maakt dit een plek waar je jarenlang met plezier kunt wonen.

WONEN IN HET GROENE OOSTERHEEM VAN ZOETERMEER
De wijk Oosterheem staat bekend om zijn moderne opzet, ruime straten en groene karakter. Hier woon je in een rustige en kindvriendelijke omgeving met alle voorzieningen binnen handbereik. Denk aan winkelcentrum Oosterheem, diverse supermarkten, scholen en sportverenigingen. Alles ligt op korte afstand, waardoor het dagelijkse leven hier comfortabel en praktisch is ingericht. Wat deze locatie extra aantrekkelijk maakt, is de combinatie van rust en bereikbaarheid. Met het RandstadRail-station in de buurt ben je snel in het centrum van Zoetermeer, Den Haag of Rotterdam. Ook de uitvalswegen richting de A12 zijn goed bereikbaar. Na een Paar minuten wandelen stap je zo het groene park Bentwoud in voor een heerlijke wandeling en het vinden van rust.

VERKOPERS VERTELLEN
Wij zijn de eerste bewoners van ons huis en hebben hier ruim 20 jaar met veel plezier gewoond.
Het is een rustige straat met toch alle voorzieningen in de buurt. Onze fijne buren aan weerszijden wonen er ook al vanaf het begin.
Wij vinden het handig dat je voor een boodschapje in 5 minuten naar het winkelcentrum loopt, en als we de andere kant op lopen zijn we in 2 minuten in het Bentwoud met 80 kilometer aan voet- en fietspaden. Tijdens de schemering zien we de hazen uit het Bentwoud soms rondhuppelen op de grasstrook langs het huis.
We hopen dat de nieuwe bewoners deze rustige plek met uitzicht over het Heemkanaal net zo zullen waarderen als wij hebben gedaan.

KENMERKEN:
* Vraagprijs: € 715.000,-
* Gelegen in gewilde wijk Oosterheem, vrij uitzicht over water
* Het groene Bentwoud voor een heerlijke wandeling ligt op loopafstand
* Tuin op het westen
* Riante inpandige berging op de begane grond
* Woonoppervlakte: 157 m²
* Perceeloppervlakte: 166 m²
* Bouwjaar: 2005
* Aantal verdiepingen: 2
* Aantal kamers: 5
* Aantal slaapkamers: 4 (waarvan momenteel 2 samengevoegd d.m.v. schuifdeur)
* Energielabel: A++ (geldig t/m 03-11-2032)
* 2 parkeerplaatsen op eigen terrein
* Door de split-level indeling is de woonkamer 3.30 meter hoog
* Voorzien van CV-ketel, WTW-systeem en 12 zonnepanelen
* Oplevering: in overleg (voorkeur september 2026)

INTERESSE? MAAK DAN SNEL EEN AFSPRAAK!
Ons advies is om bij het kopen van uw nieuwe woning uw eigen NVM-makelaar mee te nemen.

TOELICHTINGSCLAUSULE NEN2580
De Meetinstructie is gebaseerd op de NEN2580. De Meetinstructie is bedoeld om een meer eenduidige manier van meten toe te passen voor het geven van een indicatie van de gebruiksoppervlakte. De Meetinstructie sluit verschillen in meetuitkomsten niet volledig uit, door bijvoorbeeld interpretatieverschillen, afrondingen of beperkingen bij het uitvoeren van de meting.

KOOPOVEREENKOMST PAS RECHTSGELDIG NA ONDERTEKENING
Een mondelinge overeenstemming tussen de particuliere verkoper en de particuliere koper is niet rechtsgeldig. Met andere woorden: er is geen koop. Er is pas sprake van een rechtsgeldige koop als de particuliere verkoper en de particuliere koper de koopovereenkomst hebben ondertekend. Dit vloeit voort uit artikel 7:2 Burgerlijk Wetboek. Een bevestiging van de mondelinge overeenstemming per e-mail of een toegestuurd concept van de koopovereenkomst wordt overigens niet gezien als een 'ondertekende koopovereenkomst'

“Deze informatie is door ons met de nodige zorgvuldigheid samengesteld. Onzerzijds wordt echter geen enkele aansprakelijkheid aanvaard voor enige onvolledigheid, onjuistheid of anderszins, dan wel de gevolgen daarvan. Alle opgegeven maten en oppervlakten zijn indicatief.”

Kenmerken

Basiskenmerken

  • Status Beschikbaar
  • Koopsom € 715.000 k.k.
  • Woonoppervlakte ca. 157 m2
  • Aantal slaapkamers 4
  • Bouwjaar 2005

Overdracht

  • Aanvaarding In overleg

Bouwvorm & onderhoud

  • Soort object Tussenwoning
  • Soort woning Herenhuis
  • Bouwjaar 2005
  • Soort bouw woonhuis
  • Ligging Aan water, aan park, aan rustige weg, in woonwijk, vrij uitzicht

Oppervlakte & inhoud

  • Gebruiksoppervlakte 157m2
  • Perceeloppervlakte 166m2
  • Inhoud 579m3
  • Aantal kamers 5
  • Aantal slaapkamers 4
  • Aantal woonlagen 2 woonlagen

Energie & installatie

  • Energielabel A++
  • Isolatie Dakisolatie, vloerisolatie, volledig geisoleerd
  • Verwarming Cv ketel, warmte terugwininstallatie
  • Warm water Cv ketel
  • C.v.-ketel type GAS
  • Energie einddatum 03-11-2032

Bergruimte

  • Voorzieningen Voorzien van verwarming, voorzien van elektra, voorzien van water

Parkeergelegenheid

  • Parkeerfaciliteiten Openbaar parkeren, op eigen terrein
  • Garage Geen garage

Dak

  • Soort dak Plat dak

Overig

  • Onderhoud binnen Goed tot uitstekend
  • Onderhoud buiten Goed tot uitstekend
  • Bijzonderheden Gedeeltelijk gestoffeerd
  • Permanente bewoning Ja
  • Huidig gebruik Woonruimte
  • Huidige bestemming Woonruimte

Voorzieningen

  • Voorzieningen Mechanische ventilatie, tv kabel, schuifpui, glasvezel kabel, zonnepanelen

Buitenruimte

  • Hoofdtuin ACHTERTUIN
  • Oppervlakte hoofdtuin 28m2
  • Ligging hoofdtuin WEST
  • Kwaliteit tuin Normaal

Kadastrale gegevens

  • Perceelnummer 2995
  • Perceeloppervlakte 166 m2
Meer kenmerken
Ontdek online wat jouw huis waard is

Met de online waardecheck ontdek je in een paar minuten de geschatte waarde van jouw huis

Online waardecheck

In de buurt

Geïnteresseerd?

Bel met Ruseler & Van Herk Makelaars

shape

Stuur een bericht

* Maximaal 255 tekens
privacyverklaring