Chat with us, powered by LiveChat 1e Pijnackerstraat 91 B, 3035 GN ROTTERDAM - Ruseler & Van Herk Makelaars

Rotterdam

1e Pijnackerstraat  91 B

€ 625.000,- k.k.

Omschrijving

Instapklare dubbele benedenwoning met tuin in het Oude Noorden! Welkom in deze verrassend ruime dubbele benedenwoning van maar liefst 120 m², gelegen in een van de meest karaktervolle wijken van Rotterdam: het Oude Noorden. Deze instapklare 4-kamerwoning is in 2020-2021 volledig gerenoveerd en biedt een fraaie mix van modern comfort en authentieke sfeer. De woning heeft…

Instapklare dubbele benedenwoning met tuin in het Oude Noorden!

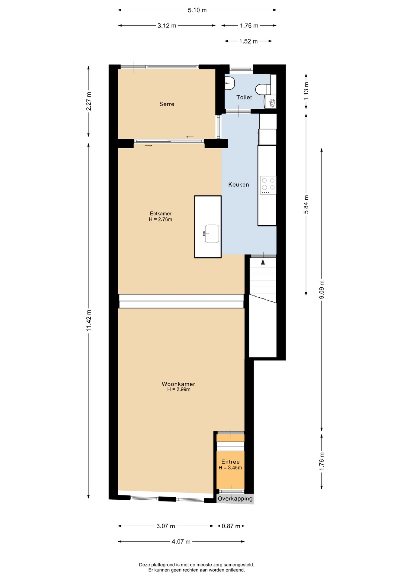
Welkom in deze verrassend ruime dubbele benedenwoning van maar liefst 120 m², gelegen in een van de meest karaktervolle wijken van Rotterdam: het Oude Noorden. Deze instapklare 4-kamerwoning is in 2020-2021 volledig gerenoveerd en biedt een fraaie mix van modern comfort en authentieke sfeer. De woning heeft een eigen entree, een royale living met open woonkeuken, drie ruime slaapkamers en een zonnige achtertuin op het westen. Dankzij het hoge afwerkingsniveau en de speelse indeling voelt het geheel luxe, licht en uitnodigend. Bovendien is er in 2021 funderingsherstel uitgevoerd, wat zorgt voor extra zekerheid voor de toekomst.

LICHTE WOONKAMER EN LUXE KEUKEN ALS MIDDENPUNT
Via de karakteristieke entree stap je binnen in een ruime hal met tochtportaal, waarna je uitkomt in de prachtige woon-/eetkamer. Wat direct opvalt is het open karakter en de speelse hoogteverschillen. De woonkamer aan de voorzijde kijkt uit over de gezellige 1e Pijnackerstraat. De leefkeuken, die iets hoger ligt, is een echte eyecatcher, met een groot spoeleiland als hart van de ruimte. Hier kook je met gemak voor familie of vrienden, terwijl er nog alle ruimte is voor een grote eettafel. De moderne keuken (2020) is uiteraard voorzien van alle gemakken: elektrische kookplaat, magnetron, oven, afzuigkap, vaatwasser en koel-/vriescombinatie. Via de schuifpui loop je zo het terras op, welke nu is afgesloten en dient als een verlenging van de woning, maar die op een mooie zomer dag zo omgetoverd kan worden naar een zonnig terras als verlenging van de buitenruimte. Middels de trap kom je in de zonnige tuin op het westen. Een oase van rust, midden in de stad.

VOLWAARDIG SOUTERRAIN MET SLAAPKAMERS EN BADKAMER
Het souterrain doet absoluut niet onder voor de bovenverdieping. Dankzij een plafondhoogte van 2,40 meter (en zelfs 2,64 meter in de master bedroom!) voelt dit als een volwaardige woonlaag. De ruime hal geeft toegang tot alle vertrekken: drie comfortabele kamers, een moderne badkamer, wasruimte en berging (inloopkast). De master bedroom ligt aan de achterzijde en is bijzonder ruim, met meer dan 7 meter lengte is hier plek voor slapen én werken. De tweede slaapkamer aan de voorzijde is perfect als logeerkamer, werkplek of kinderkamer. De badkamer is stijlvol uitgevoerd met dubbele wastafel, inloopdouche en een tweede toilet.

OUD NOORD: KARAKTER, GEZELLIGHEID EN VERBINDING
Wonen in het Oude Noorden betekent wonen in een van de meest levendige wijken van Rotterdam. De buurt is de afgelopen jaren sterk in opkomst en biedt een unieke mix van oude architectuur, creativiteit en modern gemak. Je loopt zo naar het Zwaanshalskwartier, bekend om zijn originele winkels, ambachtelijke speciaalzaken en gezellige bistro’s. Hier proef je het echte Rotterdamse stadsleven, rauw en charmant tegelijk. Op het Noodplein is er iedere zondag de 'oogstmarkt' ideaal voor verse groente, bloemen en andere producten. Voor ontspanning zijn er diverse cafés, brouwerijen en terrassen, en voor de dagelijkse boodschappen zijn er genoeg supermarkten in de buurt. Favorieten van de verkopers zijn het restaurant Speck en Bar Lou. Qua bereikbaarheid zit je ook goed: het centrum van Rotterdam is dichtbij, openbaar vervoer ligt om de hoek en via de A20 of A16 ben je snel de stad uit.

KENMERKEN
- Eigen grond
- Bouwjaar 1897
- Woonoppervlakte ca. 120 M²
- Energielabel B
- Volledig gerenoveerd in 2020-2021
- Ruime woonkamer met open keuken
- Inpandig terras dat om te toveren is naar een 'normaal' terras (7 M²)
- Zonnige tuin op het westen
- 2 Ruime slaapkamers
- Verwarming en warm water via CV-ketel (2025)
- Funderingsherstel 2021
- Actieve VvE, maandelijkse bijdrage van ca. € 110,- per maand
- Ouderdomsclausule van toepassing
- Oplevering in overleg

INTERESSE? MAAK DAN SNEL EEN AFSPRAAK!
Ons advies is om bij het kopen van jouw nieuwe huis altijd jouw eigen NVM makelaar mee te nemen.

TOELICHTINGSCLAUSULE NEN2580
De Meetinstructie is gebaseerd op de NEN2580. De Meetinstructie is bedoeld om een meer eenduidige manier van meten toe te passen voor het geven van een indicatie van de gebruiksoppervlakte. De Meetinstructie sluit verschillen in meetuitkomsten niet volledig uit, door bijvoorbeeld interpretatieverschillen, afrondingen of beperkingen bij het uitvoeren van de meting.

KOOPOVEREENKOMST PAS RECHTSGELDIG NA ONDERTEKENING
Een mondelinge overeenstemming tussen de particuliere verkoper en de particuliere koper is niet rechtsgeldig. Met andere woorden: er is geen koop. Er is pas sprake van een rechtsgeldige koop als de particuliere verkoper en de particuliere koper de koopovereenkomst hebben ondertekend. Dit vloeit voort uit artikel 7:2 Burgerlijk Wetboek. Een bevestiging van de mondelinge overeenstemming per e-mail of een toegestuurd concept van de koopovereenkomst wordt overigens niet gezien als een 'ondertekende koopovereenkomst'

“Deze informatie is door ons met de nodige zorgvuldigheid samengesteld. Onzerzijds wordt echter geen enkele aansprakelijkheid aanvaard voor enige onvolledigheid, onjuistheid of anderszins, dan wel de gevolgen daarvan. Alle opgegeven maten en oppervlakten zijn indicatief.”

Kenmerken

Basiskenmerken

  • Status Beschikbaar
  • Koopsom € 625.000 k.k.
  • Woonoppervlakte ca. 120 m2
  • Aantal slaapkamers 2
  • Bouwjaar 1897

Overdracht

  • Aanvaarding In overleg

Bouwvorm & onderhoud

  • Bouwjaar 1897
  • Soort bouw woonhuis
  • Ligging In woonwijk

Oppervlakte & inhoud

  • Gebruiksoppervlakte 120m2
  • Inhoud 450m3
  • Aantal kamers 6
  • Aantal slaapkamers 2
  • Aantal woonlagen 2 woonlagen

Energie & installatie

  • Energielabel B
  • Isolatie Dakisolatie, dubbel glas, hr glas
  • Verwarming Cv ketel
  • Warm water Cv ketel
  • C.v.-ketel type GAS
  • C.v.-ketel bouwjaar 2025
  • Energie einddatum 29-04-2032

Parkeergelegenheid

  • Parkeerfaciliteiten Openbaar parkeren, betaald parkeren, parkeervergunningen
  • Garage Geen garage

Dak

  • Soort dak Schilddak

Overig

  • Onderhoud binnen Goed tot uitstekend
  • Onderhoud buiten Goed
  • Bijzonderheden Gedeeltelijk gestoffeerd
  • Permanente bewoning Ja
  • Huidig gebruik Woonruimte
  • Huidige bestemming Woonruimte

Voorzieningen

  • Voorzieningen Mechanische ventilatie, tv kabel, buitenzonwering, schuifpui, natuurlijke ventilatie

Buitenruimte

  • Hoofdtuin ACHTERTUIN
  • Oppervlakte hoofdtuin 31m2
  • Ligging hoofdtuin WEST
  • Kwaliteit tuin Normaal

Kadastrale gegevens

  • Perceelnummer 5331
Meer kenmerken
Ontdek online wat jouw huis waard is

Met de online waardecheck ontdek je in een paar minuten de geschatte waarde van jouw huis

Online waardecheck

In de buurt

Geïnteresseerd?

Bel met Ruseler & Van Herk Makelaars

shape

Stuur een bericht

* Maximaal 255 tekens
privacyverklaring