Chat with us, powered by LiveChat Koningshof 9, 2981 DA RIDDERKERK - Ruseler & Van Herk Makelaars

Ridderkerk

Koningshof  9

€ 425.000,- k.k.

Omschrijving

Lichte maisonette met zonnig terras en moderne afwerking – Koningshof 9, Ridderkerk Welkom in deze fraai afgewerkte maisonettewoning op de tweede verdieping van het verzorgde complex Koningshof. Deze woning combineert een lichte, ruime indeling met moderne gemakken en een heerlijk terras op het zuiden – een ideale plek voor wie comfortabel wil wonen in het hart van…

Lichte maisonette met zonnig terras en moderne afwerking – Koningshof 9, Ridderkerk

Welkom in deze fraai afgewerkte maisonettewoning op de tweede verdieping van het verzorgde complex Koningshof. Deze woning combineert een lichte, ruime indeling met moderne gemakken en een heerlijk terras op het zuiden – een ideale plek voor wie comfortabel wil wonen in het hart van Ridderkerk!

Indeling

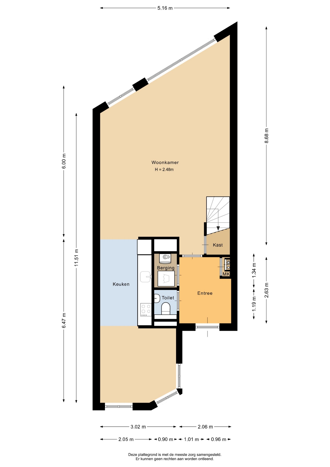
Begane grond / entree
Via de gezamenlijke entree met videofoonsysteem bereikt u de woning op de tweede verdieping.
Binnenkomst in de ruime hal, waar zich de meterkast (met 8 groepen), een separaat toilet met zwevend closet en een bergruimte bevinden. In deze bergkast is tevens de aansluiting voor de wasmachine en de opstelplaats voor de CV-ketel aanwezig.

Vanuit de hal loopt u door naar de lichte woonkamer, een fijne leefruimte met grote raampartijen die zorgen voor veel natuurlijk daglicht. De open keuken sluit naadloos aan op de woonkamer en is voorzien van een apart eetgedeelte aan de voorzijde van de woning – perfect voor gezellige diners of een borrel met vrienden.

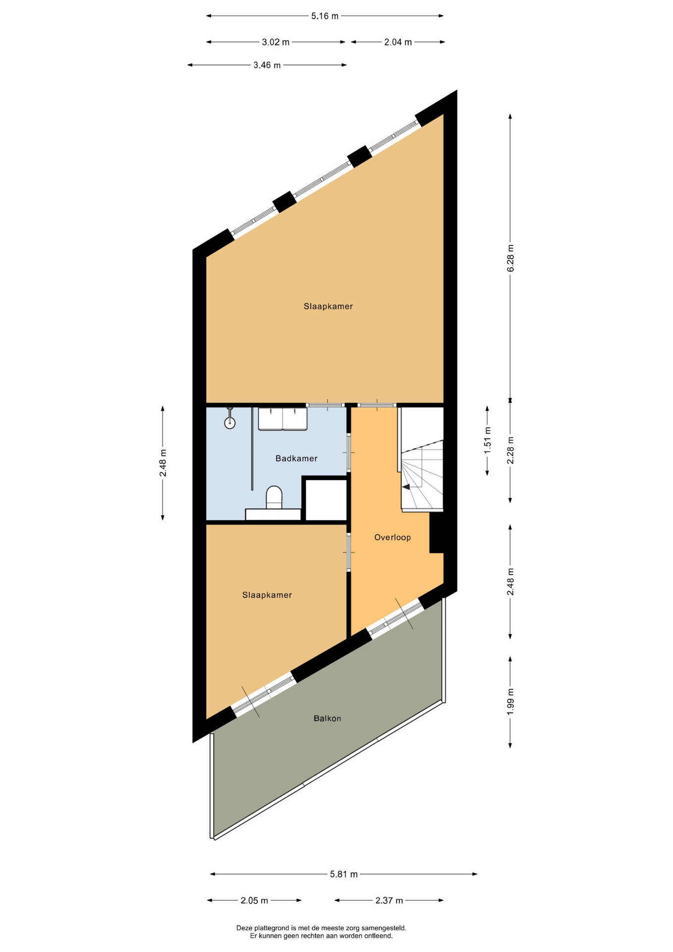
Eerste verdieping

Via de trap in de woonkamer bereikt u de eerste verdieping.
Op de overloop heeft u toegang tot het zonnige terras aan de voorzijde, waar u heerlijk kunt ontspannen. Aan de achterzijde ligt een ruime slaapkamer met voldoende plaats voor een groot bed en kastruimte.

De badkamer is stijlvol afgewerkt en voorzien van een ruime inloopdouche, een tweede toilet, een dubbele wastafel met meubel en een handdoekenradiator. Vanuit zowel de hal als de badkamer bereikt u de zeer royale hoofdslaapkamer, een heerlijke plek om tot rust te komen.

Overig

De woning beschikt over een eigen berging in de onderbouw en is voorzien van een videofoonsysteem.

Pluspunten van deze woning

Lichte maisonette op de 2e verdieping

Ruime woonkamer met open keuken en apart eetgedeelte

Twee royale slaapkamers

Moderne badkamer met luxe voorzieningen

Zonnig terras aan de voorzijde

Berging in de onderbouw

Videofooninstallatie

Centrale ligging nabij winkels, openbaar vervoer en uitvalswegen

Wilt u deze heerlijke woning met eigen ogen bekijken?
Maak snel een afspraak voor een bezichtiging – Koningshof 9 in Ridderkerk zal u aangenaam verrassen!

Van der Giessen & Van Herk Makelaars behartigt de belangen van de verkopende partij. Neem uw eigen NVM aankoopmakelaar mee.

Alle verstrekte informatie moet beschouwd worden als een uitnodiging tot het doen van een bod of om in onderhandeling te treden.

Deze informatie is door ons met de nodige zorgvuldigheid samengesteld. Onzerzijds wordt echter geen enkele aansprakelijkheid aanvaard voor enige onvolledigheid, onjuistheid of anderszins, dan wel de gevolgen daarvan. Alle opgegeven maten en oppervlakten zijn indicatief. Van toepassing zijn de NVM voorwaarden.

Koopovereenkomst pas rechtsgeldig na ondertekening:
Een mondelinge overeenstemming tussen de particuliere verkoper en de particuliere koper is niet rechtsgeldig. Met andere woorden: er is geen koop. Er is pas sprake van een rechtsgeldige koop als de particuliere verkoper en de particuliere koper de koopovereenkomst hebben ondertekend. Dit vloeit voort uit artikel 7:2 Burgerlijk Wetboek. Een bevestiging van de mondelinge overeenstemming per e-mail of een toegestuurd concept van de koopovereenkomst wordt overigens niet gezien als een 'ondertekende koopovereenkomst'.

Toelichtingsclausule NEN2580:
De Meetinstructie is gebaseerd op de NEN2580. De meetinstructie is bedoeld om een meer eenduidige manier van meten toe te passen voor het geven van een indicatie van de gebruiksoppervlakte. De meetinstructie sluit verschillen in meetuitkomsten niet volledig uit, door bijvoorbeeld interpretatieverschillen, afrondingen of beperkingen bij het uitvoeren van de meting.

Kenmerken

Basiskenmerken

  • Status Verkocht onder voorbehoud
  • Koopsom € 425.000 k.k.
  • Woonoppervlakte ca. 112 m2
  • Aantal slaapkamers 2
  • Bouwjaar 2005

Overdracht

  • Aanvaarding In overleg

Bouwvorm & onderhoud

  • Bouwjaar 2005
  • Soort bouw woonhuis
  • Ligging In centrum

Oppervlakte & inhoud

  • Gebruiksoppervlakte 112m2
  • Inhoud 353m3
  • Aantal kamers 3
  • Aantal slaapkamers 2
  • Aantal woonlagen 2 woonlagen

Energie & installatie

  • Energielabel A
  • Isolatie Dubbel glas
  • Verwarming Cv ketel
  • Warm water Cv ketel
  • C.v.-ketel type GAS
  • C.v.-ketel bouwjaar 2018
  • Energie einddatum 29-12-2026

Bergruimte

  • Schuur / berging Box
  • Voorzieningen Voorzien van elektra

Parkeergelegenheid

  • Parkeerfaciliteiten Openbaar parkeren, betaald parkeren, parkeergarage, parkeervergunningen
  • Garage Geen garage

Dak

  • Soort dak Plat dak

Overig

  • Onderhoud binnen Goed
  • Onderhoud buiten Goed
  • Permanente bewoning Ja
  • Huidig gebruik Woonruimte
  • Huidige bestemming Woonruimte

Voorzieningen

  • Voorzieningen Tv kabel

Kadastrale gegevens

  • Perceelnummer 7232
Meer kenmerken
Ontdek online wat jouw huis waard is

Met de online waardecheck ontdek je in een paar minuten de geschatte waarde van jouw huis

Online waardecheck

In de buurt